février 2023
février 2023
Abo

Une structure sûre qui a du style

Construire avec du métal et du verre

Nous sommes à Taipei, la capitale de Taïwan, qui compte plusieurs millions d’habitants. L’immeuble résidentiel et commercial Futura One, conçu par le bureau Philipp Mainzer à Francfort, a été construit dans un emplacement central. Les façades en verre de style loft, soulignées par les profilés en acier élancés de Jansen, sont caractéristiques. Ces derniers doivent satisfaire à une exigence particulière: résister aux typhons qui s’abattent régulièrement sur la région.


Connexion

Merci de l’intérêt que vous portez à nos contenus. Les abonnés de la revue spécialisée metall trouveront le Login pour l’accès intégral dans les informations légales de la version imprimée actuelle. Le mot de passe change tous les mois.


Inscrivez-vous maintenant pour lire cet article. Inscrivez-vous pour lire les différents articles et payez très facilement par carte de crédit. (CHF 5.- par article)
En tant qu’utilisateur enregistré, vous pouvez accéder à tout moment à l’article acheté.

Si - en tant que professionnel dans les domaines de la construction métallique, en acier et de façades - vous n’êtes pas encore abonné à la revue spécialisée metall, ne perdez plus une seconde et souscrivez dès à présent votre abonnement ici.

Fonction et fantaisie : les façades en acier et en verre disposées de manière convexe et concave.
Fonction et fantaisie : les façades en acier et en verre disposées de manière convexe et concave.

 

Construire avec du métal et du verre

Une structure sûre qui a du style

Nous sommes à Taipei, la capitale de Taïwan, qui compte plusieurs millions d’habitants. L’immeuble résidentiel et commercial Futura One, conçu par le bureau Philipp Mainzer à Francfort, a été construit dans un emplacement central. Les façades en verre de style loft, soulignées par les profilés en acier élancés de Jansen, sont caractéristiques. Ces derniers doivent satisfaire à une exigence particulière: résister aux typhons qui s’abattent régulièrement sur la région.

Texte : Reinhold Kober et rédaction / Photos : Shawn Liu Studio pour Jansen AG

Le bâtiment emblématique doit son style particulier à la structure de la façade. Rappelant les designs paramétriques, les unités d’habitation en verre sont disposées en décalage dans la trame en béton apparent. Il en résulte une ligne de vue irrégulière qui vient rompre l’aspect homogène des petits éléments de fenêtres sur les buildings voisins et qui crée un charmant contraste. Notamment entre le béton apparent et la réflexion de la lumière du soleil lorsque celle-ci vient éclairer les différents étages sous différents angles. Le verre, l’acier et le béton se conjuguent de manière bien proportionnée. À cet égard, les concepteurs n’ont pas cherché à dissimuler les colonnes de la façade en béton, qui a été coulée dans les plus grandes formes disponibles afin d’éviter les joints de coffrage. Mais le mélange de béton choisi contribue aussi à l’aspect pastel de la façade, qui est assez typique des constructions européennes.
La situation insulaire et la proximité de la mer posent des exigences particulières. Par exemple, le système de profilés et la structure de vitrage correspondante doivent pouvoir supporter des charges de vent pouvant atteindre trois kilopascals (kPa).
Afin de satisfaire à cette exigence, des essais spécifiques au mandat ont été effectués sous la direction de Jansen Chine. Cela a permis de démontrer l’étanchéité à l’eau et la sécurité sismique du système de façades VISS.

 

Filigrane et robuste à la fois

Chaque appartement constitue une unité à part entière et forme ainsi un espace intérieur infiniment grand. Les architectes ont créé un design fluide exempt de cloisons, colonnes, murs et coins. Le système VISS SG, qui crée un contour arrondi vers le plafond, contribue également à cette esthétique hors du commun. Le jeu rythmique d’ombre et de lumière de cette façade à montants et traverses crée un contraste avec la structure robuste du béton apparent. Les formations des façades en verre varient, mais elles se répètent tous les quatre étages.
«Pour notre projet Futura One à Taipei, le contraste entre la structure rigide résistante aux séismes et les surfaces intérieures filigranes en verre constituait un élément central. Le système de Jansen permet une construction avec un cadre réduit et de grandes surfaces vitrées. Il est capable de résister aux charges de vent des typhons que nous avons dans la région. C’était donc la solution idéale pour notre projet. De plus, grâce à une planification individuelle, il a été possible de réaliser le plan irrégulier avec des angles extrêmement différents. C’est toujours agréable quand des produits aident à concrétiser ses propres idées», déclare Philipp Mainzer, l’architecte responsable du projet, afin de mettre en avant les avantages des systèmes de Jansen utilisés.

 

« Pour notre projet Futura One à Taipei, le contraste entre la structure rigide résistante aux séismes et les surfaces intérieures filigranes en verre constituait un élément central. » Philipp Mainzer, architecte responsable

 

Treize étages dotés de façades en verre carrées. Alternance des formes convexes et concaves (derrière la colonne).
Treize étages dotés de façades en verre carrées. Alternance des formes convexes et concaves (derrière la colonne).

 

Vitrage SG sans profilés

Les vitrages à isolation thermique protègent les utilisateurs du bâtiment contre la chaleur, le bruit et la lumière du soleil. Reliés mécaniquement par des clips en T et assemblés dans des angles variés, les verres sont insérés verticalement comme vitrage SG dans le système de façades en acier VISS. Ce système peut accueillir des dimensions de vitrage pouvant atteindre 6,30 m × 2,86 m. Outre leur esthétique filigrane, le fait que les matériaux soient mis en valeur et les parties transparentes ainsi réalisables pour les façades de bâtiments, les systèmes de profilés VISS de Jansen convainquent parce qu’ils satisfont aux attentes actuelles en matière de constructions de façades à haute isolation thermique et parce qu’ils présentent les certifications de la norme Passivhaus.
Disponible en combinaison avec les profilés design Linea, Delta ou avec des variantes individuelles, la façade VISS convient en version standard pour le montage montant-montant-traverse ou montant-traverse-montant. Des constructions soudées et modulaires ainsi que des vitrages segmentés concaves ou convexes sont également réalisables. Les designs angulaires alternants (concaves et convexes) de l’objet Futura One créent un style anguleux qui structure pour ainsi dire la façade. Les exigences en matière de planification, de technique, de logistique et de montage étaient donc d’autant plus haut placées.
Des portes battantes sécurisées s’ouvrant vers l’extérieur ont été installées pour aérer l’espace intérieur. Les charnières masquées et le vitrage décalé isolant couvrant les profilés constituent une solution technique élégante.
La protection contre les chutes est assurée par une plaque transparente en verre de sécurité feuilleté qui est placée à la verticale à l’intérieur.

Les lignes des façades en verre créent un effet optique fantaisiste.
Les lignes des façades en verre créent un effet optique fantaisiste.

 

Des exigences haut placées pour l’étanchéité à l’eau

Concernant la technique de construction, la particularité de ces vitrages réside, outre l’utilisation du système de profilés, dans l’approche Semi Structural Glazing à vitrage sec, pour laquelle les concepteurs ont opté ici. L’exécution entièrement vitrée, rendue possible grâce aux profilés de Jansen AG, offre un degré de transparence poussé et répond aux directives spécifiques en matière de statique, afin de maîtriser les charges de vent et les éventuelles oscillations sismiques dues à la hauteur du bâtiment et à sa situation géographique.
Les projets de construction des clients locaux privilégient habituellement la façade traditionnelle en aluminium à vitrage humide. La collaboration avec Jansen a ici permis de réaliser la première façade en acier à vitrage sec de l’île et d’atteindre des exigences d’étanchéité à l’eau pouvant atteindre 720 pascals (Pa) et 3,4 litres par mètre carré par minute. Une œuvre de pionnier qui, en combinaison avec des frais d’entretien nettement réduits par rapport à une façade à vitrage humide, offre des avantages indéniables. Sans oublier l’atout de la résistance au vent: les minces profilés en acier ont résisté aux charges de plusieurs kPa appliquées à différentes hauteurs du bâtiment lors des essais effectués en amont. En résumé, la construction de façade choisie offre la liberté de conception souhaitée. Avec ses cubes d’habitation différemment agencés selon l’étage, le système satisfait aux exigences posées en matière de sécurité et d’efficacité du bâtiment. De plus, il convainc sur le plan esthétique grâce à sa grande transparence, qui permet un apport de lumière naturelle en conséquence.

Un élégant système levant-coulissant sans seuil mène aux balcons.
Un élégant système levant-coulissant sans seuil mène aux balcons.

 

Éléments levants-coulissants sans seuil

Les éléments levants-coulissants modernes des balcons sécurisés par des garde-corps laissent l’espace intérieur se fondre avec l’espace extérieur et offrent une vue continue et une liberté infinie. De plus, ils allient un seuil adapté aux personnes handicapées et une isolation thermique optimale à une architecture contemporaine. Avec son triple vitrage isolant, le système de porte Janisol HI utilisé satisfait également aux exigences les plus élevées en matière d’isolation et de sécurité et offre d’excellentes valeurs statiques en cas de vent et de séisme.   ■

Coupe horizontale de l’angle de façade convexe (Detail A)Coupe horizontale de l’angle de façade concave (Detail B)
Coupe horizontale de l’angle de façade convexe (Detail A)
Coupe horizontale de l’angle de façade concave (Detail B)
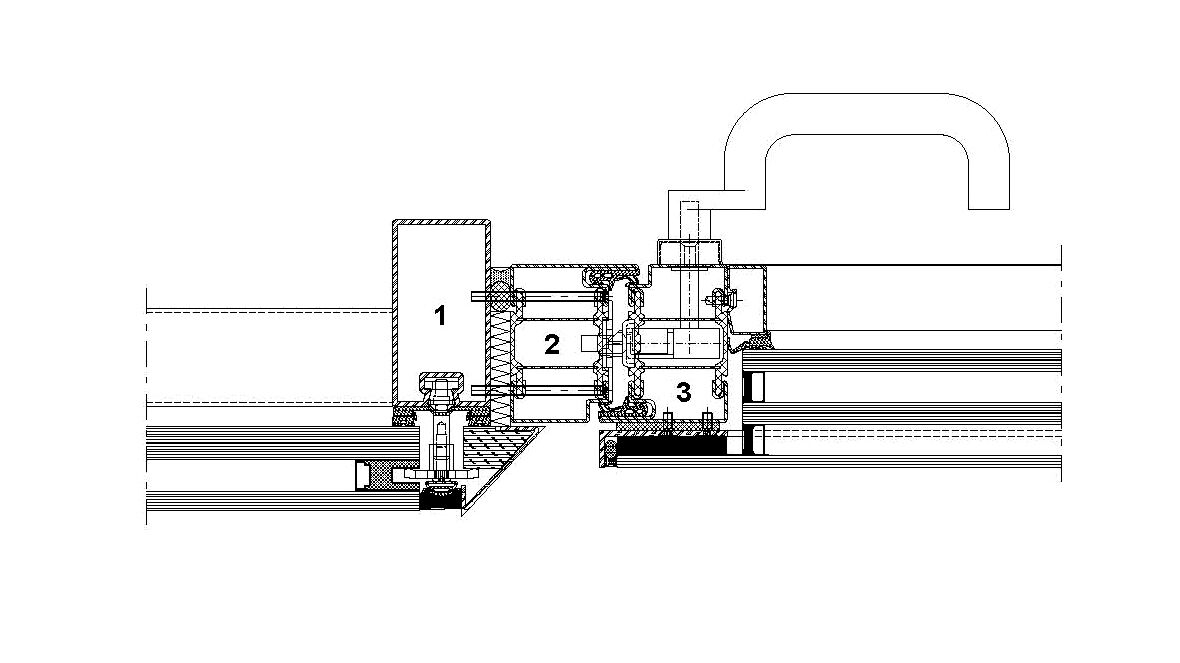
Coupe horizontale raccord porte à vantaux côté serrure
Coupe horizontale raccord porte à vantaux côté serrure

 

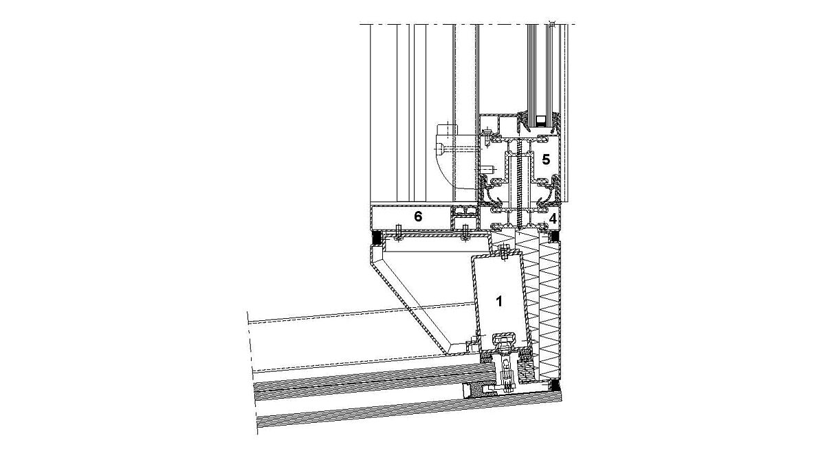
Coupe horizontale transition entre façade et élément levant-coulissant
Coupe horizontale transition entre façade et élément levant-coulissant


1. Profilé VISS J.76.697
2. Dormant J.608.013
3. Encadrement de battant J.608.013
4 / 6. Dormant levant-coulissant J.600.012
5. Profilé de vantail levant-coulissant J.400.056

 

Panneau de chantier

Maître d’ouvrage :

Architectural Pursuer, Taipei/Taïwan

Architecte:

Philipp Mainzer, Francfort-sur-le-Main/Allemagne

Construction métallique:

Excellentechnik Inc., Taipei/Taïwan

Systèmes de profilés utilisés:

VISS Semi-SG, système de porte Janisol HI, système levant-coulissant Janisol

Fournisseur du système:

Jansen AG, Oberriet