mai 2022
mai 2022
Abo

Un joyau de verre à la ferme

Technique du verre

La pergola vitrée de la maison en pierre donne une impression de légèreté et de transparence. Son apparence élégante est marquée par un esprit d’innovation, une technique de verre ultramoderne et une précision extrême.


Connexion

Merci de l’intérêt que vous portez à nos contenus. Les abonnés de la revue spécialisée metall trouveront le Login pour l’accès intégral dans les informations légales de la version imprimée actuelle. Le mot de passe change tous les mois.


Inscrivez-vous maintenant pour lire cet article. Inscrivez-vous pour lire les différents articles et payez très facilement par carte de crédit. (CHF 5.- par article)
En tant qu’utilisateur enregistré, vous pouvez accéder à tout moment à l’article acheté.

Si - en tant que professionnel dans les domaines de la construction métallique, en acier et de façades - vous n’êtes pas encore abonné à la revue spécialisée metall, ne perdez plus une seconde et souscrivez dès à présent votre abonnement ici.

Photo : Mario RussiLa pergola vitrée est élégante et extrêmement transparente sur cette imposante maison d’habitation. Les voiles textiles encore enroulés assurent une protection solaire efficace.
Photo : Mario Russi
La pergola vitrée est élégante et extrêmement transparente sur cette imposante maison d’habitation. Les voiles textiles encore enroulés assurent une protection solaire efficace.

Technique du verre

Un joyau de verre à la ferme

La pergola vitrée de la maison en pierre donne une impression de légèreté et de transparence. Son apparence élégante est marquée par un esprit d’innovation, une technique de verre ultramoderne et une précision extrême.

Texte : René Pellaton / Photos selon indications

La pergola vitrée de l’imposante maison en pierre datant de 1850 est légère, transparente et élégante. Porté par 13 piliers, le toit vitré protège la terrasse recouverte de quartzite du Rhin postérieur ainsi que l’accès latéral de la pluie et du vent.
Deux techniques de construction totalement opposées, issues d’époques très différentes, se sont rencontrées ici : la construction existante âgée de près de 170 ans et la technique du verre ultramoderne et tournée vers l’avenir.
Tandis que la ferme en pierre naturelle rappelle des rochers marins, l’annexe vitrée se niche discrètement à ses côtés. Si les différentes têtes en verre ne paraissaient pas un peu plus sombres et si les éléments de liaison arrondis ne reflétaient pas le ciel, l’annexe de 65 m2 formant l’angle du bâtiment passerait presque inaperçue

 

Outre une apparence légère et élégante, les maîtres d’ouvrage ont accordé une grande importance aux considérations fonctionnelles. Ils ont délibérément renoncé à des piliers de toit continus sur la face avant et voulu que les vitres du toit soient légèrement orientées vers l’extérieur. « Ces deux mesures permettent à l’air réchauffé sous le toit vitré de s’échapper librement et de ne pas former d’accumulation thermique », explique Mario Russi, propriétaire et directeur de Cladding SA. M. Russi était responsable du développement technique, de la statique et, en collaboration avec le maître d’ouvrage, des aspects visuels. Un voile textile qui se déploie automatiquement sert d’élément d’ombrage primaire.

Dimensions du verre à la limite

Si l’on considère la surface du toit depuis le haut, on discerne une forme en L au sens large. Tandis que la forme du toit présente un angle de 90° du côté du bâtiment, les deux bords extérieurs du toit de 9,3 m de large et de 12,40 m de profondeur sont nettement plus étroits l’un par rapport à l’autre et la surface du toit en direction de l’entrée latérale se réduit linéairement.
L’ensemble de la construction vitrée se compose de 13 piliers et d’autant de traverses. Douze vitres individuelles, dont certaines présentent des formes géométriques très différentes, y reposent. Les plus grands vitrages mesurent 5,90 m de long et 1,75 m de large et permettent d’étudier ce qui est techniquement faisable sur une telle construction. Toutes les arêtes vitrées extérieures et toutes celles du côté du bâtiment sont horizontales, ce qui conduit, associé au rétrécissement de la surface de la toiture, à un pli correspondant de la ligne de faîte, qui est également soutenue par un pilier. Les eaux pluviales sont dirigées vers le bâtiment et évacuées par la rigole installée sur la façade dans le tube de renfort situé à l’angle du bâtiment.
 

Photo : rédactionPartie latérale au-dessus de l’entrée. Effet fantaisiste des assemblages de verre arrondis en acier inoxydable dans le ciel.
Photo : rédaction
Partie latérale au-dessus de l’entrée. Effet fantaisiste des assemblages de verre arrondis en acier inoxydable dans le ciel.

 

Schéma : Cladding AGVue de dessus : la forme en L et le rétrécissement vers l’entrée sont bien visibles. On visualise aussi la ligne supérieure pliée en diagonale.
Schéma : Cladding AG
Vue de dessus : la forme en L et le rétrécissement vers l’entrée sont bien visibles. On visualise aussi la ligne supérieure pliée en diagonale.

Différentes structures vitrées

Les fonctions des éléments en verre sont aussi variées que les qualités et les structures du verre. Le vitrage feuilleté de sécurité en verre flotté de 2 x 12 mm et un film statique PVB résistant au cisaillement ont été utilisés pour les vitres de toit. Un verre feuilleté de sécurité en VPP 4 x 12 mm, également associé à un film statique PVB, a été employé sur les piliers et les traverses. Pour des raisons esthétiques, le maître d’ouvrage a décidé de n’utiliser que du verre blanc, ce qui, associé aux films, crée un effet très clair et légèrement bleuâtre. Les effets grisâtres sur la surface du toit semblent provenir de reflets de l’environnement. « Je pense qu’avec le choix du vitrage, nous avons assez bien répondu aux attentes du maître d’ouvrage », déclare Mario Russi lors de la visite du site. « Les différentes ombres projetées dans la zone des composants en acier inoxydable dégagent un certain enjouement. Il s’est avéré une fois de plus qu’un échantillonnage préalable de différents verres était recommandé, voire indispensable. »
Lors de la commande des verres feuilletés de sécurité, les arêtes doivent être réalisées avec soin en garantissant un décalage minimal. Glas Trösch a parfaitement satisfait à cette exigence, car aucun décalage du verre n’est constaté sur les éléments de construction en verre. Le processus de laminage de ces verres s’est déroulé de manière atypique dans un sac sous vide.

  

Photo : rédactionRaccordements à angle droit, également en profilés en acier inoxydable, sur les piliers sous la ligne de faîte.
Photo : rédaction
Raccordements à angle droit, également en profilés en acier inoxydable, sur les piliers sous la ligne de faîte.

 

Photo : Mario RussiRaccordement à la façade. Tout est en acier inoxydable : les profilés de sabots de verre, les revêtements de la rigole et le revêtement du tuyau d’eaux pluviales, qui joue également un rôle de soutien.
Photo : Mario Russi
Raccordement à la façade. Tout est en acier inoxydable : les profilés de sabots de verre, les revêtements de la rigole et le revêtement du tuyau d’eaux pluviales, qui joue également un rôle de soutien.

Ancrage dans un mur en pierre naturelle

Du fait de la liaison avec le bâtiment, une grande partie des charges de toit sont transférées au mur en pierre naturelle derrière la façade par des sabots en acier inoxydable et des consoles locales. Il est difficile de dimensionner les ancrages aux murs en pierre naturelle avec fiabilité, car la grande inconnue réside dans la pierre individuelle et la stratification des pierres. Même si l’ancre est solidement ancrée dans la pierre, il est impossible de savoir avec certitude dans quelle mesure la pierre est reliée à l’ensemble de la maçonnerie. Pour faire face à de telles situations, M. Russi a appliqué une méthode d’essai spéciale et vérifié tous les ancrages sur site (metall a publié des informations détaillées sur cette méthode dans l’édition d’août 2021).
Les consoles de base ont été fixées sur cet édifice à l’aide d’ancrages en acier inoxydable de 500 mm de long. Pour ce faire, des perçages ont été réalisés, puis le forage et les cavités correspondantes ont été remplis d’une mousse rigide. Un nouveau perçage circulaire a été pratiqué après séchage, ce qui a permis de garantir que le mortier-colle destiné à la tige d’ancrage adhère de manière ciblée à la pierre et qu’il n’y a pas de cavités excessives à combler. Une fois le temps de durcissement des ancrages écoulé, chacun a été soumis à un test d’arrachement. Ils ont tous résisté aux sollicitations exigées, ce qui témoigne de la solidité de la maçonnerie en pierre naturelle.

Photo : Mario RussiAu cours de la réalisation des ancrages des consoles dans la pierre naturelle, chacun d’eux a été soumis à une traction et les forces de traction requises ont été contrôlées.
Photo : Mario Russi
Au cours de la réalisation des ancrages des consoles dans la pierre naturelle, chacun d’eux a été soumis à une traction et les forces de traction requises ont été contrôlées.

Appui sur le sol

La reprise des forces d’appui verticales est assurée par des profilés de sabot individuels en acier inoxydable. Il faut savoir que tous les profilés de sabot sont articulés et offrent au verre une certaine liberté de mouvement. « Les exigences en matière d’agilité et la possibilité de remplacer le verre sans l’endommager ont été des éléments importants du développement de la construction. C’est l’une des raisons pour lesquelles nous avons renoncé aux assemblages statiques en résine moulée, par exemple », explique M. Russi.
La combinaison de verre feuilleté a été mise en place afin d’assurer un positionnement solide et esthétique du verre dans le profilé du sabot. Les deux vitres intérieures sont ainsi plus longues que les vitres extérieures. Les plus longues sont guidées dans le profilé et fixées mécaniquement. Les deux vitres extérieures plus courtes ne s’étendent que jusqu’à 10 mm sur le profilé en acier inoxydable et assurent ainsi un joint en silicone propre. Les deux vitres intérieures ont été enduites d’un mastic d’étanchéité noir à utiliser pour les vitrages de façade structuraux (VS) juste avant leur introduction, ce qui évite la vue disgracieuse sur le profilé du sabot et permet de délimiter clairement le verre du métal. Cette procédure a d’ailleurs été appliquée pour toutes les pénétrations de verre, y compris pour les balustrades.

Photo : maître d’ouvrageEffet noble de la transition entre le support de verre et le profilé du sabot dans le quartz du Rhin postérieur.
Photo : maître d’ouvrage
Effet noble de la transition entre le support de verre et le profilé du sabot dans le quartz du Rhin postérieur.

 

« Les exigences en matière d’agilité et la possibilité de remplacer le verre sans l’endommager ont été des éléments importants du développement de la construction. C’est l’une des raisons pour lesquelles nous avons renoncé aux assemblages statiques en résine moulée. » Mario Russi

 

Photo : Mario RussiLe verre a été enduit de silicone VS avant son introduction dans le profilé du sabot, ce qui masque le profilé.
Photo : Mario Russi
Le verre a été enduit de silicone VS avant son introduction dans le profilé du sabot, ce qui masque le profilé.

 

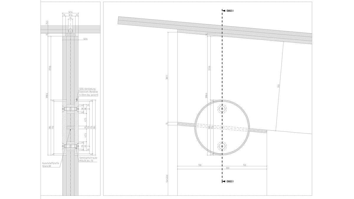
Rondelles en acier inoxydable entre piliers et traverses

La liaison entre les piliers et les traverses horizontales respecte également le principe des saillies. Mais les deux vitres extérieures des piliers et des traverses sont découpées ici en demi-cercle. Un trou dans les vitres à assembler assorti de douilles filetées permet de serrer solidement les rondelles en acier inoxydable des deux côtés à l’aide de vis à tête fraisée. Des joints VS noirs périphériques empêchent l’eau de pénétrer et délimitent clairement les pièces métalliques du verre.

 

Schéma : Cladding  AGCoupe verticale (à gauche) et vue à travers les joints du verre. En haut le pilier, en bas la traverse. Des rondelles en acier inoxydable servent de plaques de liaison et de stabilisation.
Schéma : Cladding  AG
Coupe verticale (à gauche) et vue à travers les joints du verre. En haut le pilier, en bas la traverse. Des rondelles en acier inoxydable servent de plaques de liaison et de stabilisation.

 

 

Photo : Mario RussiPiliers lors de la préparation dans l’usine de Glas Trösch SA. Les découpes semi-circulaires ainsi que les différentes longueurs de verre (intérieur/extérieur) pour un ajustement approprié dans les profilés des sabots sont bien visibles.
Photo : Mario Russi
Piliers lors de la préparation dans l’usine de Glas Trösch SA. Les découpes semi-circulaires ainsi que les différentes longueurs de verre (intérieur/extérieur) pour un ajustement approprié dans les profilés des sabots sont bien visibles.

 

Photo : maître d’ouvrageLes tubes de balustrade traversent les piliers. Les trous dans le verre sont également enduits d’un mastic d’étanchéité noir. Les extrémités sont formées de manchettes en acier inoxydable.
Photo : maître d’ouvrage
Les tubes de balustrade traversent les piliers. Les trous dans le verre sont également enduits d’un mastic d’étanchéité noir. Les extrémités sont formées de manchettes en acier inoxydable.

Verre de toit

Les verrières jointes entre elles reposent d’un côté sur les piliers, soutenus par un profilé en caoutchouc rigide (dureté de 80 Shore). Un scellement continu contre les intempéries assure l’étanchéité en haut et une adhésion SSG périphérique garantit la liaison entre la traverse et le verre en bas.

 

Photo : Mario RussiUn échafaudage en bois de précision réalisé au préalable a servi de gabarit pour le montage du verre.
Photo : Mario Russi
Un échafaudage en bois de précision réalisé au préalable a servi de gabarit pour le montage du verre.

Montage précis

Le montage extrêmement précis de cet ouvrage a été un défi de taille pour Merkle Metallbau AG à Coire, notamment parce que toutes les consoles et tous les profilés de sabot devaient être placés, alignés et ancrés devant le revêtement du verre. Un géomètre a pris les mesures afin de réduire au minimum les tolérances et les écarts.
Pour un montage extrêmement précis des vitrages, les responsables de Merkle Metallbau AG ont décidé de planifier, de construire et d’installer une structure auxiliaire en bois avant la livraison du verre. Celle-ci était construite de manière à permettre la mise en place des différents vitrages depuis les arêtes du bois.
L’étanchéification des joints de vitres horizontaux avec le mastic adhésif noir VS s’est elle aussi avérée complexe, car le produit ressemble davantage à un yaourt qu’à un mastic à base de silicone de construction typique.
L’étroite collaboration entre les entreprises impliquées et les idées claires du maître d’ouvrage ont donné naissance à un ouvrage extrêmement élégant et parfaitement réussi. ■

Panneau de chantier

Projet :

Maison d’habitation en Suisse

Architecture, statique, développement :

Cladding SA, Landquart avec le maître d’ouvrage

Construction métallique et montage complet :

Merkle Metallbau AG, Coire

Fabrication du verre :

Glas Trösch SA, Gossau (SG)