décembre 2023
décembre 2023
Abo

Technique des voies d’évacuation : l’essentiel en bref

Portes de secours

Les portes de secours doivent pouvoir s’ouvrir facilement, en appuyant sur la poignée, en actionnant la barre antipanique ou automatiquement. Les constructeurs doivent planifier et produire des portes pour voies d’évacuation répondant aux exigences légales, normatives et fonctionnelles.


Connexion

Merci de l’intérêt que vous portez à nos contenus. Les abonnés de la revue spécialisée metall trouveront le Login pour l’accès intégral dans les informations légales de la version imprimée actuelle. Le mot de passe change tous les mois.


Inscrivez-vous maintenant pour lire cet article. Inscrivez-vous pour lire les différents articles et payez très facilement par carte de crédit. (CHF 5.- par article)
En tant qu’utilisateur enregistré, vous pouvez accéder à tout moment à l’article acheté.

Si - en tant que professionnel dans les domaines de la construction métallique, en acier et de façades - vous n’êtes pas encore abonné à la revue spécialisée metall, ne perdez plus une seconde et souscrivez dès à présent votre abonnement ici.

Les portes des voies d’évacuation et de sauvetage doivent pouvoir s’ouvrir facilement et sur toute la largeur requise à tout moment dans le sens de la fuite.
Les portes des voies d’évacuation et de sauvetage doivent pouvoir s’ouvrir facilement et sur toute la largeur requise à tout moment dans le sens de la fuite.

 

Portes de secours

Technique des voies d’évacuation : l’essentiel en bref

Les portes de secours doivent pouvoir s’ouvrir facilement, en appuyant sur la poignée, en actionnant la barre antipanique ou automatiquement. Les constructeurs doivent planifier et produire des portes pour voies d’évacuation répondant aux exigences légales, normatives et fonctionnelles.

Texte et photos : rédaction

L’autorité compétente en matière de protection incendie fixe les lois qui définissent les exigences minimales relatives aux portes des voies d’évacuation, en collaboration avec l’office de l’inspection du travail dès que des lieux de travail sont concernés.
Les systèmes de fermeture contrôlés selon les normes SN EN 179 et SN EN 1125 satisfont à l’exigence selon laquelle les portes des voies d’évacuation et de sauvetage doivent toujours pouvoir s’ouvrir facilement et sur toute la largeur requise dans le sens de la fuite. Ces portes doivent donc toujours être marquées comme telles. Une porte de secours doit pouvoir s’ouvrir dans le sens de la fuite en une seconde et d’un seul mouvement. En fonctionnement normal, la porte ne doit pas se déformer au point de ne plus pouvoir s’ouvrir (p. ex. conditions climatiques telles que chaleur, etc.). Les portes antipanique doivent s’ouvrir sous une précharge de 1000 N. Les portes de secours usuelles répondent aux normes SN EN 179 (version mécanique) et prEN 13637 (version électrique).

Largeurs de passage

La largeur utile des portes des voies d’évacuation doit être définie en fonction du nombre possible d’occupants (voir la directive de protection incendie de l’AEAI « Voies d’évacuation et de sauvetage »). Elle est déterminée par le local recevant le plus grand nombre de personnes. La largeur utile minimale est de 0,90 m. Selon le nombre d’occupants, la largeur est étendue par multiples de 0,60 m. Pour les portes à deux vantaux qui permettent une ouverture dans un seul sens, un vantail doit présenter une largeur libre d’au moins 0,90 m. Pour les portes à deux vantaux, le vantail semi-fixe doit uniquement disposer de fonctions d’évacuation si le vantail mobile ne présente pas la largeur utile exigée. La hauteur de passage libre des voies d’évacuation horizontales doit être d’au moins 2,10 m. Des écarts sont possibles en fonction de l’usage et doivent être clarifiés selon l’objet.

 

« La largeur utile minimale est de 0,90 m. En fonction du nombre d’occupants, la largeur est étendue par multiples de 0,60 m. » Nom, prénom, fonction

 

Fonctions des fermetures antipanique mécaniques

La fermeture antipanique doit pouvoir s’ouvrir à tout moment dans le sens de la fuite sans outils par actionnement de la poignée ou de la barre de poussée/antipanique. Les pênes demi-tour et dormant se rétractent alors, même si la serrure a été préalablement fermée à clé. De nos jours, on utilise généralement des serrures antipanique autoverrouillantes. Un dispositif spécial repousse le pêne dans la serrure lorsque la porte se referme afin de la verrouiller à nouveau.  ■

Antipanique partielle/intégrale

Pour les portes à deux vantaux, on distingue les variantes suivantes :

Antipanique partielle :
Ouverture antipanique uniquement sur le vantail mobile. Le vantail semi-fixe reste fermé.

Antipanique intégrale :
Ouverture antipanique sur le vantail semi-fixe et sur le vantail mobile. Cette variante nécessite un clapet de fermeture supplémentaire. La distance de feuillure entre le vantail mobile et le vantail semi-fixe au niveau de la mortaise sert à éviter les contraintes en utilisant un « vantail antipanique » de 11 mm à la place d’un « vantail standard » de 5 mm (légère variation possible selon le fabricant du système de profilés).

Poignée
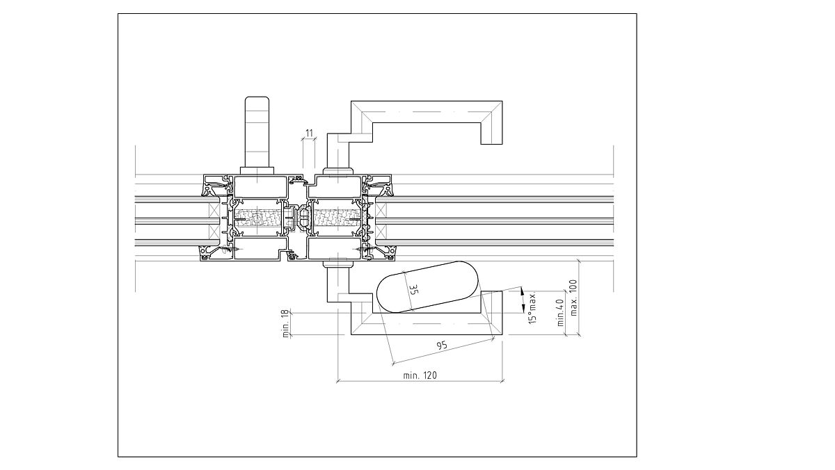
Lors du choix de la poignée, veiller à minimiser le risque d’accrochage des vêtements. La norme SN EN 179 prescrit des poignées aux dimensions minimales et maximales adaptées (voir graphique).

La norme SN EN 179 prescrit des poignées aux dimensions minimales et maximales adaptées.
La norme SN EN 179 prescrit des poignées aux dimensions minimales et maximales adaptées.

 

Fiche technique

Pour de plus amples informations, vous pouvez télécharger la fiche technique TK 004 « Portes pour issues de secours – Portes pour issues de secours à actionnement mécanique » sur www.metaltecsuisse.ch sous Technique/Notices techniques.