décembre 2023
décembre 2023
Abo

Le courage d’innover  

Protection incendie

Un système de portes coupe-feu unique en son genre a été développé pour l’extension des zones passagers côté ville à l’aéroport de Zurich: multifonctionnels, compatibles avec des équipements ultérieurs et dotés d’éléments architecturaux, les prototypes de ce nouveau système fabriqués par la société Fünfschilling AG à Allschwil ont vu leur résistance au feu et à la fumée ainsi que leur durabilité testées par l’institut ift Rosenheim.


Connexion

Merci de l’intérêt que vous portez à nos contenus. Les abonnés de la revue spécialisée metall trouveront le Login pour l’accès intégral dans les informations légales de la version imprimée actuelle. Le mot de passe change tous les mois.


Inscrivez-vous maintenant pour lire cet article. Inscrivez-vous pour lire les différents articles et payez très facilement par carte de crédit. (CHF 5.- par article)
En tant qu’utilisateur enregistré, vous pouvez accéder à tout moment à l’article acheté.

Si - en tant que professionnel dans les domaines de la construction métallique, en acier et de façades - vous n’êtes pas encore abonné à la revue spécialisée metall, ne perdez plus une seconde et souscrivez dès à présent votre abonnement ici.

Les prototypes en phase de finalisation. L’axe de rotation de ces portes pivotantes est situé au centre du vantail.
Les prototypes en phase de finalisation. L’axe de rotation de ces portes pivotantes est situé au centre du vantail.

 

Protection incendie

Le courage d’innover  

Un système de portes coupe-feu unique en son genre a été développé pour l’extension des zones passagers côté ville à l’aéroport de Zurich: multifonctionnels, compatibles avec des équipements ultérieurs et dotés d’éléments architecturaux, les prototypes de ce nouveau système fabriqués par la société Fünfschilling AG à Allschwil ont vu leur résistance au feu et à la fumée ainsi que leur durabilité testées par l’institut ift Rosenheim.

Texte et photos : Jasmin Schütz, PPEngineering GmbH

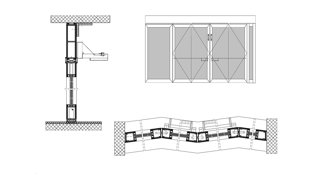
En 2014, le bureau d’architectes Dürig AG de Zurich a remporté le concours d’architecture « Extension des zones passagers côté ville » avec son concept d’infrastructure aéroportuaire proposant une expérience inoubliable. L’accès aux zones passagers de l’aéroport de Zurich, qui présentent une façade bombée avec plus de 340 portes pivotantes, se trouve sous le Food Hall, entre les parkings P2 et P3. Les éléments de porte à un vantail fixés en leur centre sont alignés en zigzag et doivent former ainsi une façade répondant aux exigences de protection incendie EI30, d’étanchéité à la fumée S200 et de fonctionnement permanent d’au moins 10 000 cycles. Le concept repose sur le fait que toutes les portes pivotantes restent ouvertes pendant les heures d’ouverture et sont fermées la nuit. En cas d’incendie, le dispositif de commande correspondant envoie une impulsion au mécanisme de maintien des éléments de porte afin qu’ils se ferment et se verrouillent automatiquement. Sur la façade bombée, les portes de secours sont signalées par des barres anti-panique vertes afin d’assurer les possibilités de fuite en cas d’incident. Chaque élément peut être doté d’équipements ultérieurs distincts.

Coupe horizontale et verticale. Les profilés sont dotés des deux côtés de revêtements d’aluminium.
Coupe horizontale et verticale. Les profilés sont dotés des deux côtés de revêtements d’aluminium.

 

Des obstacles pendant la phase d’étude du projet

Pendant la phase d’étude du projet, le bureau de planification spécialisée PPEngineering GmbH de Bâle a été confronté à de nombreux défis. Dans le cadre d’une étude de faisabilité, il a examiné les systèmes de protection incendie courants sur le marché et a essayé de trouver une solution avec ces derniers. Mais aucun système ne répondait aux exigences en la matière.
Les responsables ont donc décidé de développer un nouveau système satisfaisant à toutes les exigences. Celles-ci ont été définies en collaboration avec les autorités et les planificateurs en protection incendie, qui ont constaté qu’il existait encore une grande marge de manœuvre pour ces définitions des éléments de construction. La catégorisation précise des éléments de protection incendie s’est également révélée complexe. En effet :
- Le montage d’une porte, par exemple, s’effectue généralement dans une embrasure prévue à cet effet ou dans une structure porteuse. La situation est toutefois différente pour des portes pivotantes alignées.
- Les éléments de protection incendie (parois comprises) servent de pare-fumée, mais il n’existait pas de parois coupe-feu mobiles jusqu’à présent.
- Les portes coupe-feu sont généralement des éléments à un ou deux vantaux, mais pas à plusieurs vantaux.
- Certains éléments sont mobiles et parfois hauts de 4,0 mètres, et ressemblent donc plutôt des portails coupe-feu.
- De plus, en raison de la géométrie particulière des éléments en zigzag, il s’agissait de savoir comment les contrôler.
Dès le début, des échanges soutenus ont eu lieu avec le célèbre institut ift Rosenheim, qui a proposé ses conseils et son soutien sans hésitation et a défini les modalités de contrôle des éléments ainsi que l’ordre d’examen le plus judicieux.
Après de nombreuses discussions et clarifications, les responsables se sont mis d’accord sur les tests suivants : essai de protection incendie EI 30 – DIN EN 1634-1 et essai combiné des propriétés de fermeture automatique EN 1191 et d’étanchéité à la fumée EN 1634-3.

Les derniers capteurs de mesure sont installés pour le test de protection incendie.
Les derniers capteurs de mesure sont installés pour le test de protection incendie.

 

Un système de protection incendie novateur

La structure de ce système de protection incendie novateur a été entièrement repensée afin de tenir compte de cette géométrie complexe et des possibilités d’ouverture flexibles. Tous les éléments de ferrure mécaniques ont été montés dans l’élément de vantail, tandis que seuls des panneaux de plafond et de sol ont été prévus pour le système de pivot de Frits Jurgens dans le linteau et le sol.
Le linteau se compose d’un profilé porteur revêtu de panneaux isolants et réfrigérants ainsi que d’un revêtement extérieur en tôle. Le châssis porteur est une structure soudée composée de tôles d’acier de 6 mm d’épaisseur et de tubes d’acier de 120 x 80 x 5 mm. Ce cadre porteur statique a été recouvert de panneaux coupe-feu minéraux pour assurer une protection en cas d’incendie.

Les profilés

Des profilés en acier en forme de U constituent les pièces centrales des éléments. Les parcloses y sont également fixées. L’habillage extérieur est composé de profilés extrudés en aluminium spécialement fabriqués à cet effet. Juste derrière se trouvent des couches intermédiaires en matériau de protection incendie. Les rainures garantissent la bonne mise en place des joints en caoutchouc. Des bandes Palusol de 2 mm d’épaisseur, qui gonflent à une température de 100° C, sont insérées dans la zone de feuillure des vantaux. Des joints périphériques en caoutchouc posés des deux côtés garantissent l’étanchéité à la fumée requise. La ferrure pivotante est montée dans le cadre du vantail et ne nécessite ainsi que des interventions minimales sur le corps du bâtiment.

Des prototypes pour les essais

Comme pour de nombreux projets, le facteur temps a ici aussi joué un rôle essentiel. Fin juin 2023, les plans d’autorisation ont été validés et l’exécution des deux prototypes a été remise à la société Fünfschilling AG. L’objectif était de réaliser les essais en septembre 2023 auprès de l’institut accrédité ift Rosenheim. Pour ne pas compromettre ce délai, les éléments en béton ont déjà été commandés fin mai 2023, car le béton nécessitait une phase de durcissement de trois mois.
Afin de recueillir de premières valeurs empiriques, une partie du cadre a été envoyée en parallèle à la fabrication des profilés au svt Group of Companies pour un essai d’incendie préalable. Le résultat a montré que la température du cadre ne dépassait la valeur admissible de 180 °C qu’au bout de 46 minutes.

 

« La ferrure pivotante est montée dans le cadre du vantail et ne nécessite ainsi que des interventions minimales sur le corps du bâtiment. »  

 

La structure de la porte a supporté le test de résistance même après 30 minutes.
La structure de la porte a supporté le test de résistance même après 30 minutes.

 

Phase de test en trois étapes

Essai de protection incendie :
Le premier des trois essais a été l’essai de protection incendie réalisé par l’institut ift Rosenheim. La procédure d’essai actuellement en vigueur pour les fermetures coupe-feu selon DIN EN 1634-1 a servi de base. Au début de l’essai, il s’est avéré que cette construction novatrice avait également suscité l’intérêt des spécialistes de l’ift, qui ont suivi l’essai avec intérêt. Celui-ci s’est extrêmement bien déroulé, la vitre soumise au contraintes du vitrage coupe-feu s’est brisée dans les premières minutes et a produit l’effet souhaité. Les matériaux de protection incendie ont réagi et protégé la construction. La structure de la porte a supporté le test de résistance même après 30 minutes.

Essai de fonctionnement permanent :
Pendant l’essai de protection incendie, l’essai de fonctionnement permanent s’est déroulé dans un autre département des laboratoires d’essai de l’ift avec un échantillon supplémentaire. Celui-ci a été interrompu tous les 2500 cycles pour mesurer et contrôler les points de référence. Un résultat positif a également pu être obtenu ici après 10 000 cycles.

Essai d’étanchéité à la fumée :
Le dernier test a été l’essai d’étanchéité à la fumée pour la détermination des fuites selon EN 1634-3. L’essai a été effectué de l’intérieur et de l’extérieur avec de la fumée froide et chaude. Les échantillons ont présenté des fuites inférieures à 30 m³/h. Le troisième et dernier essai a ainsi été passé avec succès.

Préparation pour l’essai de fonctionnement permanent.
Préparation pour l’essai de fonctionnement permanent.

 

Un tel développement à l’interne est-il rentable ?

Un développement dans le domaine de la protection incendie est fastidieux, ce qui a également été le cas pour ce projet. Il y avait beaucoup d’incertitudes et il n’était pas toujours facile d’estimer l’investissement nécessaire pour trouver des solutions. Un tel projet demande avant tout un vrai courage entrepreneurial. Toute l’équipe de planification générale a soutenu ce projet de construction et tous les participants ont largement contribué à sa réussite. Le montant de l’investissement était élevé. Mais ce développement permet d’économiser dix fois plus, car il est possible de renoncer aux écrans de cantonnement des fumées et aux futures parois. L’ensemble du développement a duré plus de 6 ans et a été marqué par des hauts et des bas. Mais au final, les résultats sont impressionnants. ■

 

Panneau de chantier

Ouvrage :

Extension des zones passagers côté ville

Maître d’ouvrage :

Flughafen Zürich AG

Architecte :

Dürig AG Zurich

Institut d’essai :

ift Rosenheim (Allemagne)

Constructeur métallique :

Fünfschilling AG, Allschwil

Planification des façades :

PPEngineering GmbH, Bâle