septembre 2023
septembre 2023
Abo

Forme à facettes et acier inoxydable pour balcons

Espace de vie élargi

Sur ce bâtiment d’habitation de 15 étages à Genève, propriété de la Société Coopérative d’habitation Genève (SCHG), près de 90 tonnes d’acier inoxydable ont été installées pendant deux ans pour huit tours-balcons et deux balcons en niche. Des formes de balcons spéciales, l’exigence de transparence et des charges dues au vent à ne pas sous-estimer ont exigé beaucoup de travail de développement et d’esprit d’innovation de la part de l’entreprise de construction métallique mandatée.


Connexion

Merci de l’intérêt que vous portez à nos contenus. Les abonnés de la revue spécialisée metall trouveront le Login pour l’accès intégral dans les informations légales de la version imprimée actuelle. Le mot de passe change tous les mois.


Inscrivez-vous maintenant pour lire cet article. Inscrivez-vous pour lire les différents articles et payez très facilement par carte de crédit. (CHF 5.- par article)
En tant qu’utilisateur enregistré, vous pouvez accéder à tout moment à l’article acheté.

Si - en tant que professionnel dans les domaines de la construction métallique, en acier et de façades - vous n’êtes pas encore abonné à la revue spécialisée metall, ne perdez plus une seconde et souscrivez dès à présent votre abonnement ici.

Deux types différents de balcons ont été réalisés sur ce bâtiment de 15 étages à Genève. D’une part, les tours-balcons en saillie et, d’autre part, les loggias disposées dans les niches. photo rédaction
Deux types différents de balcons ont été réalisés sur ce bâtiment de 15 étages à Genève. D’une part, les tours-balcons en saillie et, d’autre part, les loggias disposées dans les niches. photo rédaction

 

Espace de vie élargi

Forme à facettes et acier inoxydable pour balcons

Sur ce bâtiment d’habitation de 15 étages à Genève, propriété de la Société Coopérative d’habitation Genève (SCHG), près de 90 tonnes d’acier inoxydable ont été installées pendant deux ans pour huit tours-balcons et deux balcons en niche. Des formes de balcons spéciales, l’exigence de transparence et des charges dues au vent à ne pas sous-estimer ont exigé beaucoup de travail de développement et d’esprit d’innovation de la part de l’entreprise de construction métallique mandatée.

Texte : Rédaction / Photos : Loris von Siebenthal

Selon l’incidence de la lumière et l’heure de la journée, les nouveaux balcons vitrés à facettes de l’immeuble d’habitation de plus de 50 m de haut génèrent différents effets visuels. Parfois sobres, parfois mats, parfois rutilants et brillant à la lumière du soleil. Mais ce qui reste perceptible, c’est que les objectifs optiques et techniques ont été atteints avec l’esprit d’innovation du bureau d’architectes NOMOS Groupement d’architectes SA, Genève.
Le quartier résidentiel de la Cité Vieusseux se trouve à environ deux kilomètres à l’ouest du centre-ville de Genève et à trois kilomètres au sud de l’aéroport. Un quartier résidentiel classique en amont de la ville avec de nombreux immeubles d’habitation de plusieurs étages. Le complexe résidentiel de 15 étages avec sa façade vert olive ne passe pas inaperçu.

Les façades à facettes associées aux vitrages tournants sont uniques en leur genre.
Les façades à facettes associées aux vitrages tournants sont uniques en leur genre.

 

Le bâtiment, divisé en deux unités d’habitation verticalement séparées, arbore aujourd’hui un nouveau look. Au cours des deux dernières années, l’ensemble de la façade a été rénové par étapes sous la direction du bureau NSER en charge de la direction des travaux. Parallèlement à une nouvelle structure d’isolation et à de nouvelles fenêtres, les balcons ont été en partie agrandis vers l’extérieur et dotés de vitrages mobiles. Là où l’on rencontrait auparavant de simples balcons datant quelque peu avec leurs garde-corps gris en béton, on peut admirer aujourd’hui, de bas en haut, d’élégantes unités de verre et de métal. Des améliorations souhaitées par la SCHG et très appréciées des habitants de la Coopérative.

Un régal pour les yeux : tout en acier inoxydable. En fonction de l’incidence de la lumière, les tours-balcons génèrent différents effets visuels.
Un régal pour les yeux : tout en acier inoxydable. En fonction de l’incidence de la lumière, les tours-balcons génèrent différents effets visuels.

 

Deux types de balcons différents

En observant le bâtiment à distance, on distingue deux types de balcons différents. Huit tours-balcons présentent chacune deux angles et sont à facettes à l’avant. Deux autres tours-balcons sont reconnaissables au fait qu’elles sont entièrement encastrées dans le bâtiment. Elles ont toutefois quelque chose en commun : chaque balcon s’est transformé en agréable jardin d’hiver et offre aux habitants un espace de vie supplémentaire pendant au moins neuf mois par an. Les vitrages hautement transparents s’ouvrant de tous les côtés protègent du vent et des intempéries et, comme l’explique avec enthousiasme une résidente, absorbent aussi considérablement le bruit des avions au décollage et à l’atterrissage. Si le rayonnement solaire est trop intense, il est possible de lutter efficacement contre ce phénomène en tirant les rideaux intérieurs en textile.  

Les rideaux intérieurs en textile protègent contre la surchauffe ou les regards indiscrets.
Les rideaux intérieurs en textile protègent contre la surchauffe ou les regards indiscrets.

 

Le développement, la statique, la planification, la fabrication, la logistique et le montage de l’ensemble des balcons réalisés en acier inoxydable ont été confiés à AAV Contractors SA à Plan-les-Ouates, près de Genève. Pour ce mandat, l’entreprise de construction métallique a utilisé environ 90 tonnes d’acier inoxydable en trois étapes pendant deux ans.
« L’un des défis majeurs de notre équipe a été le développement technique de ces balcons », explique Xavier Mouton, Chef de projet expérimenté chez AAV Contractors SA, lors de la visite de l’objet. « Pour un objet comptant 150 balcons, il est compréhensible que la façon de penser et d’agir soit complètement différente de celle d’un objet comprenant trois balcons, par exemple. Outre des solutions optimales sur le plan technique, l’exploitation des matériaux, la production allégée, la répétition maximale des détails, la logistique et bien d’autres facteurs ont joué un rôle décisif. »

Des loggias élargissant l’espace ont été construites pour les habitants. Elles font fusionner l’intérieur et l’extérieur.photo rédaction
Des loggias élargissant l’espace ont été construites pour les habitants. Elles font fusionner l’intérieur et l’extérieur.photo rédaction

 

Tours-balcons de forme à facettes

Comme nous l’avons déjà mentionné, huit tours-balcons sur 15 étages ont été réalisées avec des angles. Elles se déclinent en trois types (A, B, C) de par leurs dimensions. Les garde-corps en béton d’environ 120 mm ont été supprimés et le sol de balcon a été élargi d’environ 500 mm vers l’extérieur avec une nouvelle construction. Après la séparation des balcons, des gabarits métalliques spéciaux ont été utilisés pour les travaux de bétonnage. Ils ont été fixés étage par étage à environ 500 mm de l’arrête de béton. Ont ensuite été intégrés des rails Halfen, une fois le béton fait et les sous-constructions posées une couche de laine de roche a été installées. Les gabarits en question ont ensuite été réutilisés étage par étage.
Le nouveau garde-corps à facettes à l’avant est ici l’élément central. Il se compose d’une tôle d’acier inoxydable de 6 mm d’épaisseur et de 400 mm de haut au dessin extérieur, avec une surface laminée à froid. Sur la face intérieure sont soudées des tôles d’appui en acier inoxydable continues pour la pose et la fixation des vitrages ainsi que des tôles porteuses pour la formation du caniveau intégré au sol.
La fixation a été effectuée par vissage sur des consoles individuelles sur les rails Halfen insérés dans le parement en béton. Les dégorgeoirs d’écoulement pour le drainage sont également intégrés dans cette tôle.
 

Vue détaillée du mécanisme rotatif. La gouttière en creux est également bien visible. photo rédaction
Vue détaillée du mécanisme rotatif. La gouttière en creux est également bien visible. photo rédaction

 

« Un défi particulier s’est présenté lorsque nous avons constaté lors des prises de mesures que les surfaces au sol existantes présentaient des différences de hauteur allant jusqu’à 80 mm. Il a fallu tenir compte de ces tolérances en optimisant les constructions », explique Xavier Mouton en réponse aux questions à ce sujet.

Balustrades en acier inoxydable
Les balustrades disposées à l’extérieur des vitrages sont également spéciales et sortent de l’ordinaire. Elles jouent un rôle important dans la conception des balcons et l’effet visuel. Elles sont entièrement soudées à la tôle d’allège et se composent de balustres verticaux et d’une main-courante horizontale. Un tube en acier inox brossé de 60 x 10 mm a été utilisé pour les balustres et un profilé plat en acier inox brossé de 90 x 10 mm pour la main-courante.
De l’extérieur, les balustrades se déploient à partir du bord supérieur de la tôle d’allège à une hauteur de 1020 mm. À l’intérieur, elles offrent toutefois aux habitants une hauteur d’appui de plus de 1100 mm à partir du sol fini.

Vitrage
Les vitrages de balcon se composent chacun de neuf vantaux pivotants en verre intégral. Ils s’ouvrent et se ferment en quelques gestes simples selon les besoins. Afin de respecter la ventilation permanente exigée, prescrite par le physicien-conseil en construction, les vitrages sont disposés en bas, sur les côtés et en haut à une distance d’environ 60 mm par rapport au corps de bâtiment. Des distances de 20 mm entre les différents panneaux de verre sont également prises en compte. En raison des forces de vent attendues, les responsables ont opté pour une épaisseur de verre de 15 mm plutôt que de 12 mm comme d’habitude. Par conséquent, il n’a pas été possible de trouver sur le marché des systèmes de rails et des ferrures adaptés et ces composants en acier inoxydable ont dû être spécialement conçus et fabriqués. AAV Construction métallique a donc conclu une collaboration avec Aweso AG pour la fabrication de ces composants.
Les ferrures pivotantes et de verrouillage se distinguent particulièrement par l’absence de bruits de cliquetis. AAV Construction métallique a par exemple développé une fermeture à tringle spéciale dont le jeu est neutralisé de manière à éviter tout bruit parasite.


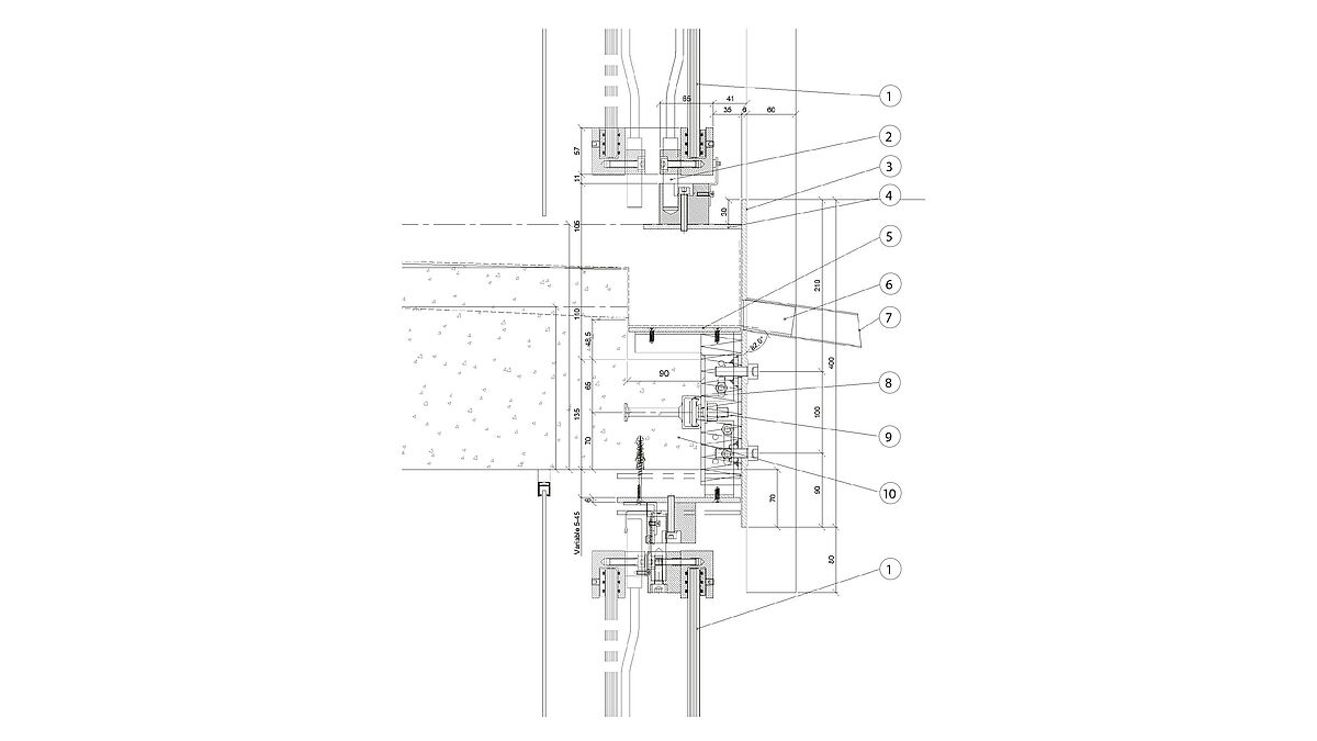
1 Verre 15 mm2 Mécanisme rotatif3 Plat Inox linéaire 400 - ép. 6 mm4 Plat inox ponctuel 120 x 6 mm5 Tôle Inox linéaire 136 x 5 mm6 Naissance pliage inox 46 x 36 x 2 mm7 Pissette tube inox 50 x 40 x 1,5 mm8 Rail Halfen HTA-CE 40/22 – 250 mm9 Isolation type Flumroc 1 – ép. 50 mm10 Béton C30/37Graphique : V Entrepreneurs SA
1 Verre 15 mm
2 Mécanisme rotatif
3 Plat Inox linéaire 400 - ép. 6 mm
4 Plat inox ponctuel 120 x 6 mm
5 Tôle Inox linéaire 136 x 5 mm
6 Naissance pliage inox 46 x 36 x 2 mm
7 Pissette tube inox 50 x 40 x 1,5 mm
8 Rail Halfen HTA-CE 40/22 – 250 mm
9 Isolation type Flumroc 1 – ép. 50 mm
10 Béton C30/37
Graphique : V Entrepreneurs SA

 

Vue détaillée d’un balcon en niche. Des fenêtres oscillo-coulissantes ont été utilisées ici. photo rédaction
Vue détaillée d’un balcon en niche. Des fenêtres oscillo-coulissantes ont été utilisées ici. photo rédaction

 

Balcons en niche

Les balcons en niche avec 30 unités sont également construits dans le même style que les tours-balcons. Toutefois, la sous-construction est fixée directement sur le parement en béton. La tôle du garde-corps et la balustrade sont aussi très similaires, mais rectilignes et non à facettes.
La principale différence réside dans le fait que des vantaux oscillo-coulissants ont été utilisés pour le vitrage. Le système est une adaptation spécifique au bâtiment du coulissant pivotant Aweso Panorama Easy Flex 370 A éprouvé. Les développements ultérieurs ont été réalisés par AAV Contractors SA et la fabrication des composants par Aweso.

Planification précise du déroulement du montage

Dans le cadre du développement, un balcon a été construit en usine comme prototype. Cela a permis de vérifier tous les détails importants et de faire une visite et une évaluation à l’échelle par le maître d’ouvrage. Ce prototype a permis de tirer différentes conclusions qui ont été prises en compte dans la production et le montage.
Comme nous l’avons mentionné, le montage a été effectué par étapes. Une planification du déroulement élaborée par AAV Contractors SA et impliquant tous les artisans a servi de base.
Après avoir découpé le béton, le gabarit a été posé pour le bétonnage. Cela s’est fait de bas en haut. Après les travaux de bétonnage, le montage des tôles d’allège avec les balustrades a suivi. Ensuite, d’autres artisans, comme les fabricants de fenêtres et les poseurs de revêtements de sol, sont intervenus. Les vitrages ont ensuite été mis en place du haut vers le bas. Tous les travaux de montage ont été effectués depuis l’échafaudage. Deux monte-charges étaient à disposition pour le transport vertical.
Propriétaire et gestionnaire du bâtiment, la SCHG a également eu à cœur d’accompagner ses sociétaires pendant les travaux, en organisant notamment des petits-déjeuners d’information chaque mois et en prenant en compte les nuisances occasionnées par ces rénovations de grande ampleur. De quoi faire de ce projet un grand succès aussi bien sur les plans technique et esthétique, que sur le plan humain.   ■

Le rail de guidage incurvé permet d’empiler les éléments de manière peu encombrante. photo rédaction
Le rail de guidage incurvé permet d’empiler les éléments de manière peu encombrante. photo rédaction

 

Panneau de chantier

Ouvrage :

Immeuble locatif Genève

Maître d’ouvrage :

Société Coopérative d’Habitation Genève (SCHG), Genève

Architecte :

NOMOS Groupement d’Architectes SA, Genève

Constructeur métallique :

AAV Contractors SA, Plan-les-Ouates

Ferrements pour vitrages :

Aweso AG, Wetzikon