février 2024
février 2024
Abo

Des verres bombés qui attirent le regard

Balustrades en verre

Un nouveau quartier a vu le jour au centre-ville d’Essen. Il comporte plusieurs bâtiments dont une tour d’habitation qui attire l’attention par sa hauteur et sa façade caractéristique. Son esthétique est fortement marquée par les balustrades et les balcons bombés de Glas Marte.


Connexion

Merci de l’intérêt que vous portez à nos contenus. Les abonnés de la revue spécialisée metall trouveront le Login pour l’accès intégral dans les informations légales de la version imprimée actuelle. Le mot de passe change tous les mois.


Inscrivez-vous maintenant pour lire cet article. Inscrivez-vous pour lire les différents articles et payez très facilement par carte de crédit. (CHF 5.- par article)
En tant qu’utilisateur enregistré, vous pouvez accéder à tout moment à l’article acheté.

Si - en tant que professionnel dans les domaines de la construction métallique, en acier et de façades - vous n’êtes pas encore abonné à la revue spécialisée metall, ne perdez plus une seconde et souscrivez dès à présent votre abonnement ici.

Le verre des balustrades des balcons est bombé, ce qui représente un défi pour de nombreux systèmes de fixation.
Le verre des balustrades des balcons est bombé, ce qui représente un défi pour de nombreux systèmes de fixation.

 

Balustrades en verre

Des verres bombés qui attirent le regard

Un nouveau quartier a vu le jour au centre-ville d’Essen. Il comporte plusieurs bâtiments dont une tour d’habitation qui attire l’attention par sa hauteur et sa façade caractéristique. Son esthétique est fortement marquée par les balustrades et les balcons bombés de Glas Marte.

Texte et photos : Claudia El Ahwany, ing. dipl.

L’année dernière, un nouveau centre de vie, de travail et de détente a été achevé au centre-ville d’Essen : le quartier Huyssen. Celui-ci est composé de cinq bâtiments, à savoir une tour d’habitation, deux immeubles résidentiels et deux immeubles de bureaux. Quatre d’entre eux ont été construits à neuf et un a été rénové. Les immeubles abritent plusieurs bureaux et magasins destinés au commerce de détail ou à la restauration, ainsi que près de 110 appartements, dont certains ont bénéficié d’une aide publique.

 

Solitaire

La tour d’habitation est justement l’élément esthétique caractéristique de l’ensemble. Avec ses 60 m de haut, elle atteint une hauteur inhabituelle tant pour la ville d’Essen que pour toute la région de la Ruhr. Cet élément solitaire se trouve juste en face du Théâtre et de la Philharmonie Aalto construit selon les plans du célèbre architecte finlandais Alvar Aalto. La tour lui doit son nom « Phil » ainsi que sa façade hors du commun. Les planificateurs se sont en effet inspirés des courbes et des lignes du théâtre pour la conception de la tour d’habitation. Celle-ci est ainsi dotée de nombreux balcons qui l’entourent comme des vagues. Ses balustrades fournies par Glas Marte se distinguent par un verre orné de trois motifs différents en sérigraphie.

Le verre des balustrades des balcons est bombé, ce qui représente un défi pour de nombreux systèmes de fixation.
Le verre des balustrades des balcons est bombé, ce qui représente un défi pour de nombreux systèmes de fixation.

 

Sérigraphie

Le fabricant n’a pas seulement conçu le design des verres, il l’a également gravé lui-même. Cette opération nécessitant des températures supérieures à 600 °C, les sérigraphies sont si solidement fixées à la surface qu’elles ne peuvent être endommagées ni par les intempéries, ni par les solvants. Elles sont en outre résistantes aux rayures et à la lumière. Grâce à son propre système de sérigraphie, Glas Marte peut réagir de manière rapide et flexible aux souhaits des clients. Le fabricant est par exemple en mesure de mélanger presque toutes les couleurs souhaitées. Mais les planificateurs du quartier Huyssen ont renoncé à ce service et opté pour un motif blanc éclatant.

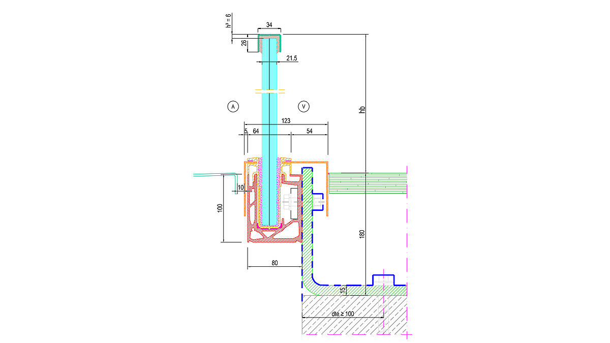
La structure de base du GM Railing Double Side est composée d’un profilé en U dans lequel l’élément de verre préfabriqué est collé.
La structure de base du GM Railing Double Side est composée d’un profilé en U dans lequel l’élément de verre préfabriqué est collé.

 

Sûr et esthétique

Les verres ainsi traités ont été intégrés par Glas Marte dans le système de balustrade en verre GM Railing Double Side. Celui-ci a pour avantage non seulement d’être très esthétique, mais aussi d’être facile à monter et d’offrir un maximum de confort et de sécurité. Le garde-corps revient par exemple toujours dans sa position initiale, même en cas de fortes sollicitations, un avantage que seuls 10 % environ des systèmes disponibles sur le marché offrent. Les éléments en verre de la balustrade sont déjà collés d’usine dans le profilé de suspension selon les critères de qualité les plus stricts, ce qui évite que l’eau ou d’autres corps étrangers n’entravent la fixation du verre. La structure de base est composée d’un profilé en U (80 x 100 mm) dans les ailes duquel les forces exercées sont réparties uniformément. Un seul et même profilé convient pour des épaisseurs de verre de 16, 20 et 24 mm. Un fait qui a eu une importance considérable pour la tour d’habitation, car les balustrades de balcon ont nécessité six vitres différentes en trois rayons de courbure, chacune en plusieurs versions. Grâce à ce système bien pensé, le montage du GM Railing Double Side ne nécessite pas de blocs de fixation, de cales ou d’autres éléments similaires susceptibles de provoquer des tensions dans le verre. Un aspect qui est toujours important, mais encore plus pour le verre bombé utilisé dans le quartier Huyssen.

Montage

Le montage simple et sûr du système a donc été un critère qui a incité les responsables à opter pour cette balustrade en verre. Cet élément a été fixé par la société Werner Neumann GmbH de Kevelaar. L’entreprise est un partenaire important de Glas Marte et a déjà réalisé des projets impressionnants dans toute l’Allemagne. Dans le quartier Huyssen, ses collaborateurs ont posé au total 1240 m de GM Railing Double Side. Il leur suffisait pour cela de fixer le profilé en U du système sur le support à l’aide de vis et d’y ajouter le mortier d’injection. Ils pouvaient ensuite accrocher le module en verre, l’orienter et colmater les joints entre les verres. Les collaborateurs de l’entreprise de montage ont donc été en mesure d’installer les balustrades des balcons sur le bâtiment en un temps record.
www.glasmarte.at     ■