novembre 2023
novembre 2023
Abo

Des caillebotis à lamelles comme brise-vue

Construction de façades

SPRICH a remporté un appel d’offres pour la construction des façades d’un nouveau complexe résidentiel de 16 appartements locatifs à Wetzikon. À l’origine de l’esthétique du projet, E2A Architekten a mis l’accent sur des éléments de protection visuelle rabattables en caillebotis à lamelles au niveau de la façade.    www.sprich.ch


Connexion

Merci de l’intérêt que vous portez à nos contenus. Les abonnés de la revue spécialisée metall trouveront le Login pour l’accès intégral dans les informations légales de la version imprimée actuelle. Le mot de passe change tous les mois.


Inscrivez-vous maintenant pour lire cet article. Inscrivez-vous pour lire les différents articles et payez très facilement par carte de crédit. (CHF 5.- par article)
En tant qu’utilisateur enregistré, vous pouvez accéder à tout moment à l’article acheté.

Si - en tant que professionnel dans les domaines de la construction métallique, en acier et de façades - vous n’êtes pas encore abonné à la revue spécialisée metall, ne perdez plus une seconde et souscrivez dès à présent votre abonnement ici.

Les éléments de protection visuelle et solaire turquoise en caillebotis à lamelles placés devant les fenêtres simples sont plus ou moins visibles selon l’incidence de la lumière.
Les éléments de protection visuelle et solaire turquoise en caillebotis à lamelles placés devant les fenêtres simples sont plus ou moins visibles selon l’incidence de la lumière.

 

Construction de façades

Des caillebotis à lamelles comme brise-vue

SPRICH a remporté un appel d’offres pour la construction des façades d’un nouveau complexe résidentiel de 16 appartements locatifs à Wetzikon. À l’origine de l’esthétique du projet, E2A Architekten a mis l’accent sur des éléments de protection visuelle rabattables en caillebotis à lamelles au niveau de la façade.    www.sprich.ch

Texte : Rédaction / Photos : SPRICH

Agréable et plutôt discret, ce nouveau bâtiment allongé s’élève sur quatre étages. La trame claire des bandes blanches le long des façades lui confère un certain caractère. Les éléments de protection visuelle et solaire turquoise en caillebotis à lamelles placés devant ses fenêtres simples sont plus ou moins visibles selon l’incidence de la lumière. Sur les quatre éléments de chaque unité, les deux éléments centraux peuvent être basculés vers l’extérieur en pivotant de 180° et offrent ainsi aux habitants une vue sur les environs.
Sur la base d’un conseil technique professionnel et d’une analyse de faisabilité avec ingénierie continue, le maître d’ouvrage a décidé de collaborer avec SPRICH.
Outre les éléments mobiles de protection visuelle, l’offre de SPRICH pour ce projet captivant aux multiples facettes comportait également les travaux d’isolation, toutes les tôles d’embrasure, les balustrades à barreaudage ainsi que les avant-toits et les portails du garage souterrain.

 

Des caillebotis à lamelles pour une excellente protection contre les regards et le soleil

Lors du choix de la grille caillebotis, les responsables ont opté pour un caillebotis à lamelles, soit un caillebotis mi-fer doté de barres transversales inclinées.
Celui-ci protège idéalement des regards et du soleil, car la hauteur des barres à lamelles (barres transversales) et la largeur des mailles peuvent être choisies librement. Son esthétique agréable est un autre avantage à ne pas sous-estimer. Les caillebotis à lamelles formant des unités à trois ou quatre éléments devaient servir de stores vénitiens. Les unités de trois éléments se composent de caillebotis à lamelles fixes qui sont accrochés et vissés aux consoles murales prémontées. Les unités de quatre éléments ont été soumises à des exigences plus élevées. Comme mentionné précédemment, les deux caillebotis à lamelles du milieu sont rabattables vers l’extérieur et offrent ainsi une vue dégagée.
Les architectes ont en particulier veillé ici à ce que la fixation des éléments soit la moins visible possible, aussi bien à l’état fermé qu’ouvert.

Les deux vantaux centraux peuvent être pivotés de 180° vers l’extérieur.
Les deux vantaux centraux peuvent être pivotés de 180° vers l’extérieur.

  

Ingénierie et maquette

Avant de d’accepter le mandat principal, SPRICH et le maître d’ouvrage se sont mis d’accord pour construire au préalable une maquette qui a servi à optimiser les processus de montage et à affiner les mécanismes de fermeture conformément aux exigences.

Lorsqu’elle est fermée, la barre de blocage est fixée de manière silencieuse et résistante au vent.
Lorsqu’elle est fermée, la barre de blocage est fixée de manière silencieuse et résistante au vent.

 

Mécanisme de rabattage et de fermeture

Une unité complète de quatre éléments se compose d’un solide châssis en tôle périphérique sur trois côtés au niveau de la fenêtre ainsi que d’unités de consoles latérales et de profilés de butée avec équerres en acier. En bas, une tablette de fenêtre continue assure un écoulement contrôlé des eaux pluviales.
L’ouverture et la fermeture des caillebotis à lamelles sont assurées par les trois paumelles rotatives soudées à la butée latérale.
Des barres de blocage pour stores vénitiens et des arrêts de stores vénitiens ont été utilisés pour la fixation des éléments rabattables à l’état ouvert ou fermé.

Des éléments préfabriqués installés grâce à une grue.
Des éléments préfabriqués installés grâce à une grue.

 

Une assistance pour un montage efficace et sûr

SPRICH a notamment développé une aide au montage spécialement conçue pour garantir un montage efficace et sûr. Cette aide au montage a été développée en tenant compte du fait qu’un seul élément de grille caillebotis pèse 80 kg et qu’une unité de quatre éléments pèse donc environ 320 kg.
Il a ainsi été possible de réduire considérablement la durée d’exploitation de la grue.

Un montage en plusieurs étapes

Le montage des éléments de construction métalliques a été réalisé en plusieurs étapes et sections. Il a exigé une coordination minutieuse de toutes les parties impliquées dans le travail du métal, de la tôle et de l’isolation.
Les caillebotis à lamelles ont ensuite été montés. Ils étaient déjà assemblés pour former des unités de quatre éléments et hissés jusqu’à leur destination à l’aide d’une grue sur pneus. La fixation a été réalisée par accrochage. Puis il a fallu procéder à l’alignement des éléments et au réglage fin des vantaux et des mécanismes de fermeture. 

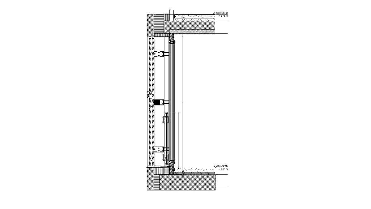
Coupe verticale d’un élément de fenêtre. À gauche, les caillebotis à lamelles sont quasiment alignés avec la façade.
Coupe verticale d’un élément de fenêtre. À gauche, les caillebotis à lamelles sont quasiment alignés avec la façade.

 

 

Les avant-toits faisaient également partie de l’offre de prestations de Sprich.
Les avant-toits faisaient également partie de l’offre de prestations de Sprich.

 

 

Panneau de chantier

Ouvrage :

Immeuble d’habitation, Wetzikon

Architecte :

E2A Architekten AG, Zurich

Éléments insérés en façade :

SPRICH AG, Baar

Durée du projet :

octobre 2021 – juin 2023

 

Technische Daten

Produit : caillebotis à lamelles duplexés

Surface : acier galvanisé à chaud et revêtu par poudrage en NCS S 4020-B30G

Largeur de maille : 44 x 22 mm

Inclinaison : 45 degrés

Taille de grille : 2290 x 735 mm

 

Quantités en unités

Caillebotis à lamelles : 484

Balustrades à barreaudage : 92

Consoles murales : 2000

Avant-toits : 2

Portails de garage souterrain : 2

Tôles d’embrasure : 432

Cheville à percussion : env. 4200

Grue sur pneus : 8 jours