Februar 2023
Februar 2023
Abo

Sichere Struktur mit Stil

Bauen mit Metall und Glas

Die Millionenstadt Taipeh ist die Hauptstadt von Taiwan. In zentraler Lage entstand das vom Frankfurter Büro Philipp Mainzer geplante Wohn- und Geschäftshaus Futura One. Charakteristisch sind die im Loftstil angelegten Glasfronten, welche von den schlanken Jansen-Stahlprofilen geprägt sind. Diese haben die besondere Anforderung – Standhaltung gegen die regionalen Taifune – zu erfüllen.


Login

Danke für Ihr Interesse an unseren Inhalten. Abonnenten der Fachzeitschrift metall finden das Login für den Vollzugriff im Impressum der aktuellen Printausgabe. Das Passwort ändert monatlich.


Jetzt registrieren und lesen. Registrieren Sie sich um einzelne Artikel zu lesen und einfach per Kreditkarte zu bezahlen. (CHF 5,- pro Artikel)
Als registrierter Benutzer haben Sie jederzeit Zugriff auf Ihre gekauften Artikel.

Sollten Sie als interessierte Fachkraft im Metall-, Stahl- und Fassadenbau die Fachzeitschrift metall tatsächlich noch nicht abonniert haben, verlieren Sie keine Zeit und bestellen Sie Ihr persönliches Abonnement gleich hier.

Zweckerfüllend und verspielt zugleich: die konvex und konkav angeordneten Stahl-Glasfronten.
Zweckerfüllend und verspielt zugleich: die konvex und konkav angeordneten Stahl-Glasfronten.

 

Bauen mit Metall und Glas

Sichere Struktur mit Stil

Die Millionenstadt Taipeh ist die Hauptstadt von Taiwan. In zentraler Lage entstand das vom Frankfurter Büro Philipp Mainzer geplante Wohn- und Geschäftshaus Futura One. Charakteristisch sind die im Loftstil angelegten Glasfronten, welche von den schlanken Jansen-Stahlprofilen geprägt sind. Diese haben die besondere Anforderung – Standhaltung gegen die regionalen Taifune – zu erfüllen.

Text: Reinhold Kober und Redaktion / Bilder: Shawn Liu Studio für Jansen AG

Der besondere Stil des ikonischen Baus geht auf die Struktur der Fassade zurück. An parametrische Designs erinnernd sind die Wohneinheiten aus Glas versetzt in den Raster aus Sichtbeton gestellt. Dadurch entsteht eine unregelmässige Sichtlinie, die die homogene Optik der kleinformatigen Fensterelemente an den benachbarten Hochhausbauten aufbricht und einen reizvollen Kontrast erzeugt. Insbesondere zwischen Sichtbeton und der Reflexion des Sonnenlichts, wenn es aus verschiedenen Winkeln auf die Ebenen des jeweiligen Stockwerks trifft. Glas, Stahl und Beton spielen wohlproportioniert zusammen. Dabei unternahmen die Planer keinen Versuch, die Säulen der zur Vermeidung von Schalungsnähten in den grössten verfügbaren Formen gegossenen Betonfassade zu kaschieren. Die gewählte Betonmischung trägt indes auch zur pastelligen Fassadenanmutung bei, wie sie nicht selten in europäischen Projekten anzutreffen ist.
Insellage und Meeresnähe stellen entsprechende Anforderungen. So sind beispielsweise maximale Windlasten von drei Kilopascal (kPa) mit dem Profilsystem und dem entsprechenden Scheibenaufbau aufzufangen.
Um dies zu gewährleisten, wurden unter der Leitung von Jansen China auftragsspezifische Prüfungen auf dem Prüfstand durchgeführt. Dies, um die Wasserdichtigkeit und die Erdbebensicherheit des VISS-Fassadensystems nachzuweisen.

 

Harmonie zwischen Filigran und Robust

Jedes Appartement stellt eine eigene Einheit dar – und bildet damit einen unendlich weitläufigen einzigen Innenraum. Die Architekten haben ein fliessendes Design ohne Trennwände, Säulen, Wände und Ecken kreiert. Zu dieser einzigartigen Formensprache trägt auch das System VISS SG bei, das zur Decke eine geschwungene Kontur schafft. Das rhythmische Spiel von Licht und Schatten dieser Pfosten-Riegel-Fassade bildet einen Kontrast zur robusten Struktur des Sichtbetons. Die Ausbildungen der einzelnen Glasfronten sind unterschiedlich, wiederholen sich jedoch mit jedem vierten Geschoss.
«Für unser Projekt Futura One in Taipeh war der Kontrast zwischen der rigiden, erdbebensicheren Struktur und den filigranen, gläsernen Innenflächen ein elementarer Bestandteil des Entwurfs. Das System von Jansen ermöglicht eine rahmenminimierte Konstruktion mit grossen Glasflächen, das den Windlasten von regionalen Taifunen widerstehen kann, und war somit die perfekte Wahl für das Projekt. Zudem konnte durch eine individuelle Planung der unregelmässige Grundriss mit unterschiedlichsten Winkeln umgesetzt werden. Es ist immer schön, wenn Produkte helfen, die eigenen Ideen in die Wirklichkeit zu bringen», erklärt Philipp Mainzer, der federführende Architekt, die Vorzüge der eingesetzten Systeme von Jansen.  

 

«Für unser Projekt Futura One in Taipeh war der Kontrast zwischen der rigiden, erdbebensicheren Struktur und den filigranen, gläsernen Innenflächen ein elementarer Bestandteil des Entwurfs.» Philipp Mainzer, federführende Architekt

 

13 Geschosse sind mit eckig ausgebildeten Glasfronten versehen. Konvex und konkav (hinter der Säule) wechseln sich ab.
13 Geschosse sind mit eckig ausgebildeten Glasfronten versehen. Konvex und konkav (hinter der Säule) wechseln sich ab.

 

Profillose SG-Verglasung

Die Wärmeschutz-Isoliergläser schirmen Gebäudenutzer gegen Hitze, Lärm und Sonnenlicht ab. In mechanischer Verbindung mit T-Clips sind die in unterschiedlichen Winkeln aneinandergefügten Gläser vertikal als SG-Verglasung in das VISS-Stahlfassadensystem eingesetzt. Dieses System lässt Glasabmessungen bis maximal 6,30 m x 2,86 m zu. Die Jansen-VISS-Profilsysteme überzeugen mit ihrer filigranen Ästhetik und akzentuierten Materialität sowie den dadurch realisierbaren Transparenzanteilen für Gebäudefassaden, weil sie die heute üblichen Erwartungen an hoch wärmegedämmte Fassadenkonstruktionen erfüllen und dafür die entsprechenden Zertifizierungen gemäss Passivhausstandard aufweisen.
Erhältlich in Verbindung mit den Designprofilen Linea, Delta oder auch individuellen Varianten eignet sich die VISS-Fassade im Standard für die Pfosten-Pfosten-Riegel- oder die Pfosten-Riegel-Pfosten-Montage, auch Schweiss- und Steckbauweisen sowie Segmentverglasungen konkav oder konvex sind ausführbar. Die im Objekt Futura One wechselnden Winkeldesigns (konkav und konvex) generieren den kantigen Stil, der die Fassade gleichsam strukturiert. Entsprechend höher waren die Anforderungen an Planung, Technik, Logistik und Montage.
Zu Belüftung des Innenraums sind einzelne, nach aussen öffnende, gesicherte Drehflügeltüren eingebaut. Verdeckt angeordnete Drehbänder und ein profildeckendes Stufen-Isolierglas bilden eine elegante technische Lösung.
Die Absturzsicherung übernimmt eine vertikal stehende, innen angebrachte, transparente Glasplatte aus Verbundsicherheitsglas.

Die Linienführung der Glasfronten schafft eine optisch verspielte Wirkung.
Die Linienführung der Glasfronten schafft eine optisch verspielte Wirkung.

 

Hohe Anforderungen an Wasserdichtigkeit

Bautechnisch liegt die Besonderheit dieser Verglasungen neben dem Einsatz des Profilsystems im trocken verglasten Semi-Structural-Glazing-Ansatz, den die Planer hier verfolgten. Die Semi-Ganzglas-Ausführung, welche die Profile der Jansen AG ermöglichen, vereint ein hohes Mass an Transparenz mit den spezifischen Vorgaben für die Statik, um die Windlasten und etwaige seismische Ausschläge, wie sie Gebäudehöhe und geografische Lage bedingen, zu beherrschen.
Bei den üblichen Bauvorhaben von lokalen Kunden dominiert die traditionelle, nass verglaste Aluminiumfassade. Hier ist es in Zusammenarbeit mit Jansen gelungen, mit der ersten trockenverglasten Stahlfassade der Insel, Anforderungen an die Wasserdichtigkeit bis zu 720 Pascal (Pa) sowie 3,4 Liter pro Quadratmeter in der Minute zu erreichen. Was wiederum, nicht zuletzt in Verbindung mit im Verhältnis zur nass verglasten Fassade signifikant reduzierten Wartungsaufwänden, für klar benennbare Vorteile dieser Pionierleistung sorgt. Dazu kommt, dass auch im Hinblick auf die Windbeständigkeit die schmalen Stahlprofile die in unterschiedlichen Gebäudehöhen aufgebrachten Lasten von mehreren kPa in vorgeschalteten Prüfungen sicher meisterten. Zusammengefasst sorgt die gewählte Fassadenkonstruktion für die gewünschte Gestaltungsfreiheit. Mit den je nach Stockwerk immer wieder neu angeordneten Wohnkuben erfüllt das System die Anforderungen an die Gebäudesicherheit und -effizienz und überzeugt auch ästhetisch mit hoher Transparenz und entsprechenden Tageslichteinträgen.   

Elegante, schwellenlose Hebeschiebeanlage führt zu den Balkonen.
Elegante, schwellenlose Hebeschiebeanlage führt zu den Balkonen.

 

Schwellenlose Hebeschiebeelemente

Die modernen Hebeschiebeelemente zu den mit Geländern gesicherten Balkonen lassen Innen- und Aussenraum miteinander verschmelzen und schaffen so einen ununterbrochenen Blick mit grenzenloser Freiheit. Dabei verbinden sie eine behindertengerechte Schwellenbildung und optimale Wärmedämmung mit zeitgenössischer Architektur. Das eingesetzte Türsystem Janisol HI mit Dreifachisolierglas erfüllt ebenfalls höchste Ansprüche an Isolation, Sicherheit und bietet hervorragende statische Werte bei Wind und Erdbeben.  ■

Horizontalschnitt Fassadenecke konvex (Detail A)  Horizontalschnitt Fassadenecke konkav (Detail B)
Horizontalschnitt Fassadenecke konvex (Detail A)
Horizontalschnitt Fassadenecke konkav (Detail B)
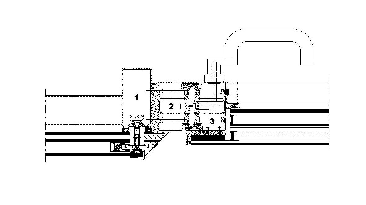
Horizontalschnitt Anschluss Flügeltüre Schlossseite.
Horizontalschnitt Anschluss Flügeltüre Schlossseite.
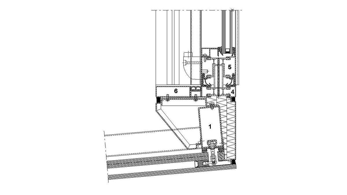
Horizontalschnitt Übergang Fassade zu Hebeschieber
Horizontalschnitt Übergang Fassade zu Hebeschieber


1. VISS-Profil J.76.697
2. Blendrahmen J.608.013
3. Flügelrahmen J.608.013
4 /6. Blendrahmen Hebeschieber J.600.012
5. Flügelprofil Hebeschieber J.400.056

 

Bautafel 

Bauherr:

Architectural Pursuer, Taipeh/TW

Architekt:

Philipp Mainzer, Frankfurt am Main/DE

Metallbau:

Excellentechnik Inc., Taipeh/TW

Verwendete Profilsysteme:

VISS Semi-SG, Janisol HI Türsystem, Janisol Hebeschiebetürsystem

Systemlieferant:

Jansen AG, Oberriet

 

Das Fachregelwerk Metallbauerhandwerk – Konstruktionstechnik enthält im Kap. 2.8 wichtige Informationen zum Thema «Warmfassaden».