Juli 2021
Juli 2021
Abo

Schwere Treppe – leichte Wirkung

Treppen und Geländer

In der Eingangshalle der sanierten Klinik Barmelweid verbindet eine aussergewöhnliche Holmentreppe aus Stahl die auskragende Galerie mit dem Eingangsgeschoss. Geometrie, Form und eine sorgfältige Ausführung machen das Werk zu einem wahren Hingucker mit statischen Besonderheiten.


Login

Danke für Ihr Interesse an unseren Inhalten. Abonnenten der Fachzeitschrift metall finden das Login für den Vollzugriff im Impressum der aktuellen Printausgabe. Das Passwort ändert monatlich.


Jetzt registrieren und lesen. Registrieren Sie sich um einzelne Artikel zu lesen und einfach per Kreditkarte zu bezahlen. (CHF 5,- pro Artikel)
Als registrierter Benutzer haben Sie jederzeit Zugriff auf Ihre gekauften Artikel.

Sollten Sie als interessierte Fachkraft im Metall-, Stahl- und Fassadenbau die Fachzeitschrift metall tatsächlich noch nicht abonniert haben, verlieren Sie keine Zeit und bestellen Sie Ihr persönliches Abonnement gleich hier.

Die stählerne Holmentreppe erschliesst die Galerie im Obergeschoss und weist eine Höhe von 3,95 m auf.
Die stählerne Holmentreppe erschliesst die Galerie im Obergeschoss und weist eine Höhe von 3,95 m auf.

Treppen und Geländer

Schwere Treppe – leichte Wirkung

In der Eingangshalle der sanierten Klinik Barmelweid verbindet eine aussergewöhnliche Holmentreppe aus Stahl die auskragende Galerie mit dem Eingangsgeschoss. Geometrie, Form und eine sorgfältige Ausführung machen das Werk zu einem wahren Hingucker mit statischen Besonderheiten.

Text: René Pellaton / Bilder: Losys GmbH 

Bereits beim Betreten der Eingangshalle zu den Bettenhäusern der Klinik Barmelweid fühlt sich der Besucher von der sich zur Tür hin öffnenden Treppenanlage herzlich willkommen geheissen. Die weisse Stahltreppe, welche die riesige Galerie über dem Eingangsgeschoss erschliesst, verbreitert sich von oben nach unten kontinuierlich, was wohl die einladende Wirkung verstärkt. Als freitragende Holmentreppe gebaut, erscheint sie in ihren hellen Farben trotz bemerkenswerter Maximalbreite von nahezu vier Metern optisch sehr leicht und transparent. Für die Planung, Herstellung und Montage dieses Werks beauftragte die Bauherrschaft die Stahl- und Metallbauunternehmung Bafento AG in Gebenstorf.

Stufen und Podeste scheinen über dem tragenden Holm zu schweben.
Stufen und Podeste scheinen über dem tragenden Holm zu schweben.

Geometrische Besonderheiten

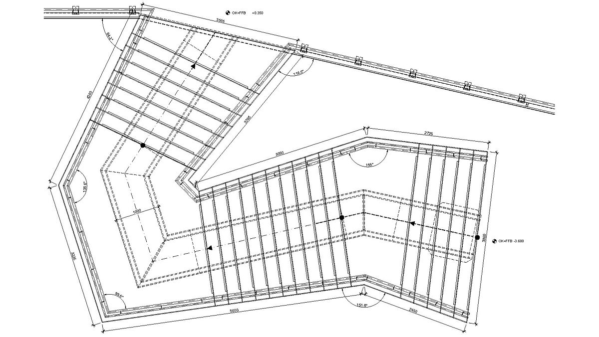
Der angefügte Grundrissplan (Grafik 1) erklärt den Verlauf der um 3,95 m ansteigenden Gehlinie sowie die Breitenverhältnisse der Treppe wohl am einfachsten: 22 unterschiedliche Treppenstufen sowie zwei Zwischen- und ein Austrittspodest führen mit drei Richtungsänderungen nach oben. Wer sich auf das obere Zwischenpodest stellt, wird feststellen, dass sich die einzelnen Stufen nach oben und auch nach unten zunehmend verbreitern. Die 17 oberen Stufen sind im Grundriss betrachtet linksseitig 90° ausgebildet und weisen auf der rechten Seite eine Schräge auf. Bei den untersten fünf Stufen liegt der Fall gerade umgekehrt und zudem weisen die Stufen einen anderen geometrischen Winkel auf. 

 

Grafik 1, Draufsicht: Gut zu erkennen die vom Mittelpodest ausgehenden Verbreiterungen nach oben und unten.
Grafik 1, Draufsicht: Gut zu erkennen die vom Mittelpodest ausgehenden Verbreiterungen nach oben und unten.

Treppenholm als statische Herausforderung

Das Rückgrat und somit den tragenden Holm bildet ein in der Treppenmitte verlaufender, freitragender Kastenträger. Vertikal und auch horizontal mehrfach abgewinkelt, ist er oben in die Zwischendecke gespannt und unten auf dem Betonboden stehend verankert. Diese steifen Anbindungen geben der Treppe zusätzliche Festigkeit und tragen die anfallenden Kräfte auf den Rohbau ab. «In statischer Hinsicht stellte die Ausbildung des Tragholms die grösste Herausforderung dar», erklärt Urs Moser, Leiter Technik bei der Bafento AG, gegenüber der «metall» und fügt an: «Neben den anfallenden Vertikal- und Horizontalkräften galt es auch, eine allfällige Torsion des Holms, aufgrund der stark überkragenden Stufen, zu verhindern und dabei doch möglichst schlank und filigran zu bleiben.» Der durchgehend verschweisste und verschliffene Kastenträger (Holm) misst 1000 mm in der Breite, 420 mm in der Höhe und besteht aus allseitig identischen Stahlblechen von 20 mm Stärke. Für den horizontalen Aufsatz der Treppenstufen sind stehende Stahlbleche von ebenfalls 20 mm, in konischer Form und als geschlossenen Sockel, aufgeschweisst. Diese Sockel sind gegenüber dem Kastenträger etwas zurückversetzt, was den optischen Eindruck von schwebenden Stufen erzeugt.  

 

«In statischer Hinsicht stellte die Ausbildung des Tragholms die grösste Herausforderung dar.» Urs Moser

 

Bild: Bafento. Blick von oben: Der Bodenbelag wurde im Anschluss an die Geländermontage vergossen.
Bild: Bafento. Blick von oben: Der Bodenbelag wurde im Anschluss an die Geländermontage vergossen.

Stufen und Podeste

Jedes Podest und auch jede Stufe ist einzigartig, kein Element kommt in Bezug auf seine Grösse zweimal vor. Für die Untersichten kamen Stahlbleche von 8 mm Stärke, für die Rahmen Stahlbleche von 12 mm zur Anwendung. Die Untersichtsbleche sind jeweils um wenige Grad nach oben gebogen, was die Verjüngung von Stufen und Podesten erzeugt. Im Bereich der Antrittskanten sind durchlaufende, geschliffene Flachprofile aus Edelstahl eingearbeitet. Diese verhindern einerseits die Abnutzung der Antrittskannte und andererseits verstärken sie den Gleitschutz im Trittkantenbereich. Zur Versteifung sind einzelne Rippen eingeschweisst, und Armierungsgitter verbinden den vergossenen Zementmörtel stabil mit den Stahlstufen. Als Gehbelag kam Rowostone Terrazzo zur Anwendung.
«Stufen und Podeste gewährten im Fabrikationsprozess kaum Potenzial für eine optimierte, rationelle Fertigung», so Urs Moser. «Die unterschiedlichen Masse und Geometrien der bis zu 3860 mm langen Stufen mit ihren hohen Ansprüchen von feinst verschliffenen Oberflächen erforderten höchste Präzision und sorgfältigste Behandlung.»

Der mehrdimensionale Tragholm wurde in drei Teilen angeliefert und am Bau zusammengefügt und verschweisst.
Der mehrdimensionale Tragholm wurde in drei Teilen angeliefert und am Bau zusammengefügt und verschweisst.

 

Leichtes Geländer

Passend zur Treppe sind auch die Geländer leicht und lebendig gestaltet. Sie bestehen aus einem Flachstahlhandlauf von 30 x 10 mm und v-förmig gebogenen Füllelementen, die sich jeweils paarweise auf die einzelnen Stufen – und auch Podeste – abstellen. Die aus Flachstahl 30 x 8 mm gebogenen Füllelemente lagern auf angeschweissten Rundbolzen, die wiederum mit Stahlplatten stabil an die Bodenbleche der Stufen befestigt sind. Treppenseitig sorgt ein geölter Holzhandlauf vom amerikanischen Nussbaum, in der Querschnittform einer verzogenen Ellipse, für eine sichere Begehung.

Magnetpulverprüfung im Werk

Die Herstellung dieser Treppenanlage erfolgte in drei Etappen. Zuerst der Tragholm, dann die Stufen und als Letztes die Geländer. Dabei galt es, die Schweissanweisung der Ingenieure genauestens einzuhalten und auch zu dokumentieren. Insbesondere beim Anschluss an die Geschossdecke wurde für die statische Dimensionierung eine sehr hohe Last angenommen, was Anschlussplatten von 40 mm Stärke erforderte. Zudem waren die Schweissnähte einer Magnetpulverprüfung durch eine autorisierte Firma zu unterziehen.
(Die Magnetpulverprüfung ist ein Verfahren zum Nachweis von Rissen in oder nahe der Oberfläche ferromagnetischer Werkstoffe. Für die Prüfung müssen die Schweissnaht und das angrenzende Material magnetisiert werden.)
Die grosse sperrige Art der Holme benötigte eine entsprechend grosse Produktionsfläche und Freiraum für das Heben und Drehen, denn schliesslich wog jedes der drei Teilstücke gegen 3,5 Tonnen. Um das präzise Zusammenpassen der Holmenteile zu sichern, wurde diese Tragkonstruktion im Werk provisorisch zusammengebaut.

Filigrane, aber stabile Befestigung der Geländer.
Filigrane, aber stabile Befestigung der Geländer.

Höhenverstellbare Hilfskonstruktion für die Montage

Die Einbringung der Holmenteile an ihren Zielort erfolgte mit dem Kran durch die bestehende Pfosten- Riegel-Fassade. Da wurden die drei Teile erst provisorisch zusammengeschraubt, dann verschweisst und verschliffen. Für die Montage der Holme kam eine höhenverstellbare Hilfskonstruktion zur Anwendung. Damit konnte das hohe Gewicht der Holme auf den unteren Betonboden abgeleitet werden, bis oben die Anschlüsse betoniert und durch den Ingenieur freigegeben wurden. Die äusserste Ecke des rund 8 Tonnen wiegenden Stahlholms wurde etwas überhöht gesetzt, sodass die oberste Zielhöhe nach der vorberechneten Stauchung durch das Eigengewicht exakt eingehalten werden konnte. Anschliessend erfolgten das Aufsetzen der Stufen auf die vorbereiteten Stahlsockel und das Verschweissen. Holm und Stufen wurden grundiert geliefert, der Fertiganstrich erfolgte anschliessend bauseits.
Im Anschluss wurden die Geländer montiert. Diese mussten millimetergenau auf die einzelnen Stufen passen. Um völlig sicherzugehen, wurden die Geländer in unbehandeltem Zustand vormontiert, dann für die Oberflächenbehandlung wieder entfernt und schlussendlich fertig beschichtet definitiv montiert. Die Holzhandläufe sind vom Fachspezialisten aufgesetzt und mit den Tragbügeln verklebt worden.    ■

 

Bautafel

Objekt:

Treppe Eingangshalle, Klinik Barmelweid

Bauherrschaft:

Klinik Barmelweid, Gemeinde Barmelweid

Architekt:

Stump & Schibli Architekten, Basel

Planung:

Rüegge Metallbautechnik GmbH, Urdorf

Ingenieur:

Roffler Ingenieure GmbH, Malans
Schnetzler Puskas Ingenieure AG, Basel

Metallbauer:

Bafento AG, Gebenstorf

 

«Die Losys GmbH ist Expertin für Referenzmarketing. Sie bietet professionelle Architekturfotografie und eine komplette Referenzverwaltung mit automatischer Aktualisierung auf der eigenen Webseite. losys-gmbh.ch.»

 

Das Fachregelwerk Metallbauerhandwerk – Konstruktionstechnik enthält im Kap. 2.38.1 wichtige Informationen zum Thema «Geländer».