Mai 2022
Mai 2022
Abo

Gläsernes Juwel am Bauernhaus

Glastechnik

Äusserst leicht und transparent wirkt die gläserne Pergola am steinernen Wohnhaus. Die edle Erscheinung ist geprägt von Innovationsgeist, modernster Glastechnik und höchster Präzision.


Login

Danke für Ihr Interesse an unseren Inhalten. Abonnenten der Fachzeitschrift metall finden das Login für den Vollzugriff im Impressum der aktuellen Printausgabe. Das Passwort ändert monatlich.


Jetzt registrieren und lesen. Registrieren Sie sich um einzelne Artikel zu lesen und einfach per Kreditkarte zu bezahlen. (CHF 5,- pro Artikel)
Als registrierter Benutzer haben Sie jederzeit Zugriff auf Ihre gekauften Artikel.

Sollten Sie als interessierte Fachkraft im Metall-, Stahl- und Fassadenbau die Fachzeitschrift metall tatsächlich noch nicht abonniert haben, verlieren Sie keine Zeit und bestellen Sie Ihr persönliches Abonnement gleich hier.

Bild: Mario RussiDie gläserne Pergola wirkt edel und äusserst transparent am stattlichen Wohnhaus. Die – noch eingerollten - textilen Segel gewähren einen effizienten Sonnenschutz.
Bild: Mario Russi
Die gläserne Pergola wirkt edel und äusserst transparent am stattlichen Wohnhaus. Die – noch eingerollten - textilen Segel gewähren einen effizienten Sonnenschutz.

Glastechnik

Gläsernes Juwel am Bauernhaus

Äusserst leicht und transparent wirkt die gläserne Pergola am steinernen Wohnhaus. Die edle Erscheinung ist geprägt von Innovationsgeist, modernster Glastechnik und höchster Präzision.

Text: René Pellaton / Bilder gemäss Hinweisen

Leicht, transparent und edel wirkt die gläserne Pergola am stattlichen Steinhaus aus dem Jahr 1850. Getragen von 13 einzelnen Glasstützen schützt das Glasdach den mit Hinterrhein-Quarzit belegten Sitzplatz sowie den seitlichen Zugang vor Regen und Wind.
Tatsache ist, dass hier zwei völlig gegensätzliche Bautechniken aus unterschiedlichsten Zeitepochen zueinandergefunden haben. Einerseits der rund 170 Jahre alte Bestand, andererseits modernste und zukunftsweisende Glastechnik.
Während das aus Natursteinen gebaute Bauernhaus den Fels in der Landschaft manifestiert, schmiegt sich der gläserne Anbau diskret an seine Seite. Würden da nicht die einzelnen Glasstirnen etwas dunkler erscheinen und die runden Verbindungselemente am Himmel spiegeln, könnte man den 65 m 2 grossen und sich um die Gebäudeecke formierenden Anbau beinahe übersehen.

 

Neben einem leichten, edlen Erscheinungsbild spielten für die Bauherrschaft funktionale Überlegungen eine grosse Rolle. So wurde bewusst auf einen frontseitig durchlaufenden Dachträger verzichtet und die Dachgläser gegen aussen leicht ansteigend gerichtet. «Diese beiden Massnahmen gewährleisten, dass die unter dem Glasdach aufgewärmte Luft ungehindert abziehen kann und sich kein Wärmestau bildet», erklärt Mario Russi, Inhaber und Geschäftsführer der Cladding AG. Russi war für die technische Entwicklung, die Statik und – zusammen mit dem Bauherrn – auch für die optischen Aspekte zuständig.
Als primäres Beschattungselement dient ein sich automatisch ausbreitendes Textilsegel.

Glasdimensionen am Limit

Betrachtet man die Dachfläche von oben, lässt diese im erweiterten Sinn auf eine L-Form schliessen. Während die Dachform gebäudeseitig einen Winkel von 90° aufweist, verlaufen die beiden Aussenkanten des 9,3 m breiten und 12,40 m tiefen Dachs in einem wesentlich engeren Winkel zueinander und die Dachfläche zum seitlichen Eingang hin reduziert sich linear.
Primär besteht die ganze Glaskonstruktion aus 13 Glasstützen und ebenso vielen Glasträgern. Darauf lagern 12 einzelne Glasscheiben, die zum Teil wesentlich unterschiedliche geometrische Formen aufweisen. Die grössten Gläser sind 5,90 m lang und 1,75 m breit und loten das technisch Machbare für eine derartige Konstruktion aus. Alle äusseren und alle gebäudeseitigen Glaskanten verlaufen horizontal. Diese Tatsache, in Kombination mit der sich verjüngenden Dachfläche, führt zur entsprechend geknickten Scheitellinie, welche ebenfalls von einem Glasträger unterstützt wird. Das Meteorwasser wird gegen das Gebäude geführt und über die an der Fassade angebrachte Rinne im Stützrohr an der Gebäudeecke abgeleitet.   

Bild: RedaktionSeitenteil über dem Eingang. Verspielte Wirkung der runden Edelstahl-Glasverbindungen am Himmel.
Bild: Redaktion
Seitenteil über dem Eingang. Verspielte Wirkung der runden Edelstahl-Glasverbindungen am Himmel.

 

Skizze: Cladding AGDraufsicht: Gut zu erkennen sind die L-Form sowie die Verjüngung gegen den Eingang hin. Auch ersichtlich ist die diagonal verlaufende, geknickte Scheitellinie.
Skizze: Cladding AG
Draufsicht: Gut zu erkennen sind die L-Form sowie die Verjüngung gegen den Eingang hin. Auch ersichtlich ist die diagonal verlaufende, geknickte Scheitellinie.

Unterschiedliche Glasaufbauten

So unterschiedlich die Funktionen der einzelnen Glasbauteile sind, so unterschiedlich sind auch die Glasqualitäten und Glasaufbauten. Für die liegenden Dachgläser kam Verbundsicherheitsglas aus 2 x 12 mm Floatglas und einer schubsteifen PVB-Statikfolie zur Anwendung. Für Stützen und Träger ein Verbundsicherheitsglas aus 4 x 12 mm TVG, ebenfalls mit PVB-Statikfolie. Aus optischen Gründen entschied sich die Bauherrschaft, ausnahmslos Weissglas zu verwenden, was in Kombination mit den Folien die sehr helle, etwas bläuliche Wirkung generiert. Die gräulichen Wirkungen in der Dachfläche scheinen von Spiegelungen aus der Umgebung zu stammen. «Ich denke, dass wir mit der getroffenen Glaswahl die Vorstellungen der Bauherrschaft ziemlich gut getroffen haben», sagt Mario Russi bei der Objektbegehung. «Auch die einzelnen Schattenwürfe im Bereich der eingesetzten Edelstahlkomponenten generieren eine gewisse Verspieltheit. Einmal mehr erwies sich auch bei diesem Objekt, dass eine vorgängige Bemusterung von verschiedenen Gläsern empfehlenswert, wenn nicht gar unabdingbar ist.»
Bei der Bestellung der Verbundsicherheitsgläser wurde eine sorgfältige Kantenausbildung mit möglichst minimalem Glaskantenversatz gefordert. Glas Trösch hatte diese Anforderung offenbar bestens erfüllt, denn an sämtlichen Glasbauteilen sind kaum Glasversätze festzustellen. Der Laminierungsprozess bei diesen Gläsern erfolgte untypischerweise in einem Vakuumsack.
  

Bild: RedaktionSpitzwinklige Anschlüsse – ebenfalls aus Edelstahlprofilen – an den Glasträgern unter der Scheitellinie.
Bild: Redaktion
Spitzwinklige Anschlüsse – ebenfalls aus Edelstahlprofilen – an den Glasträgern unter der Scheitellinie.

 

Bild: Mario RussiAnschluss an die Fassade. Alles aus Edelstahl: die Glasschuhprofile, die Verkleidungen der Wasserrinne und die Verkleidung des Dachwasserrohrs, das auch eine stützende Funktion wahrnimmt.
Bild: Mario Russi
Anschluss an die Fassade. Alles aus Edelstahl: die Glasschuhprofile, die Verkleidungen der Wasserrinne und die Verkleidung des Dachwasserrohrs, das auch eine stützende Funktion wahrnimmt.

Verankerung in Natursteinmauer

Aufgrund der Anbindung an das Gebäude wird ein grosser Teil der Dachlasten über Edelstahl-Schuhprofile und örtliche Konsolen auf die Natursteinmauer hinter der Fassade abgetragen. Verankerungen an Natursteinmauern lassen sich kaum verlässlich dimensionieren, da die grosse Unbekannte im einzelnen Stein und in der Schichtung der Steine liegt. Auch wenn der Anker fest im Stein sitzt, kann nicht verlässlich beurteilt werden, wie stark der einzelne Stein mit dem gesamten Mauerwerk verbunden ist. Zur Sicherstellung solcher Situationen hat Russi eine spezielle Prüfmethode angewandt und sämtliche Verankerungen vor Ort überprüft (die «metall» hat in der Ausgabe vom August 2021 ausführlich über diese Prüfmethode berichtet).
Die Befestigung der Grundkonsolen erfolgte an diesem Objekt mit 500 mm langen Edelstahlankern. Hierfür wurden entsprechende Bohrungen getätigt, dann die Bohrung und insbesondere die entsprechenden Hohlräume mit einem Hartschaum zugefüllt. Nach der Austrocknung erfolgte eine wiederholte Ausbohrung des Rundlochs. So konnte gewährleistet werden, dass der Klebemörtel für die Ankerstange zielgerichtet am Stein haftet und keine übergrossen Hohlräume zu füllen waren. Nach verstrichener Aushärtezeit der Anker wurde jeder einzelne einem Auszugstest unterzogen. Erfreulicherweise hielten alle den geforderten Belastungen stand, was auch auf ein äusserst solides Naturstein-Mauerwerk hinweist. 

Bild: Mario RussiWährend der Konsolenverankerungen im Naturstein wurde jeder einzelne Anker unter Zug gesetzt und auf die erforderlichen Zugkräfte geprüft.
Bild: Mario Russi
Während der Konsolenverankerungen im Naturstein wurde jeder einzelne Anker unter Zug gesetzt und auf die erforderlichen Zugkräfte geprüft.

Abstützung auf dem Boden

Auch die Abtragung der vertikalen Stützenkräfte wird über einzelne, aus Edelstahl gefertigte Schuhprofile gewährleistet. Wichtig zu wissen ist, dass sämtliche Schuhprofile gelenkig ausgebildet sind und dem Glas gewisse Bewegungsfreiheiten geben. «Der Anspruch an Gelenkigkeit sowie die Möglichkeit eines zerstörungsfreien Glasersatzes bildeten wichtige Komponenten bei der Konstruktionsentwicklung. Dies war unter anderem auch der Grund, weshalb wir auf statische Verbindungen aus beispielsweise Giessharz verzichtet haben», so Russi.
Für einen festen und ästhetisch ansprechenden Sitz des Glases im Schuhprofil erfolgte eine Aussattelung der Verbundglaskombination. So sind die zwei inneren Glasscheiben länger als die äusseren. Die längeren sind in das Profil geführt und mechanisch fixiert. Die beiden kürzeren, äusseren Scheiben laufen nur bis 10 mm an das Edelstahlprofil und ermöglichen so eine saubere Silikonfuge. Die beiden Innenscheiben wurden direkt vor der Einführung mit einer schwarzen, für Structural-Glazing-Fassaden (SG-Fassaden) zu verwendenden Dichtmasse bestrichen. Dies verhindert den unschönen Ein- und Durchblick in das Schuhprofil und grenzt klar zwischen Glas und Metall ab. Diese Vorgehensweise kam übrigens bei allen Glasdurchdringungen – auch bei den Geländern – zur Anwendung.

Bild: BauherrschaftEdle Wirkung des Übergangs Glasstütze / Schuhprofil im Hinterrhein-Quarzit.
Bild: Bauherrschaft
Edle Wirkung des Übergangs Glasstütze / Schuhprofil im Hinterrhein-Quarzit.

 

«Der Anspruch an Gelenkigkeit sowie die Möglichkeit eines zerstörungsfreien Glasersatzes bildeten wichtige Komponenten bei der Konstruktionsentwicklung. Dies war unter anderem auch der Grund, weshalb wir auf statische Verbindungen aus beispielsweise Giessharz verzichtet haben.» Mario Russi

 

Bild: Mario RussiVor der Einführung in das Schuhprofil erfolgte die Bestreichung mit schwarzem SG-Silikon. Er verhindert den Einblick in das Schuhprofil.
Bild: Mario Russi
Vor der Einführung in das Schuhprofil erfolgte die Bestreichung mit schwarzem SG-Silikon. Er verhindert den Einblick in das Schuhprofil.

 

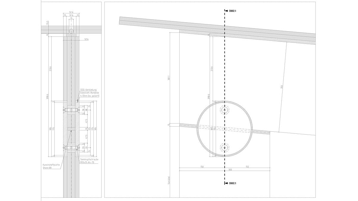
Edelstahlrondellen zwischen Stütze und Träger

Auch die Verbindung zwischen den Glasstützen und den horizontal verlaufenden Glasträgern folgt dem Prinzip der Aussattelungen. Nur sind hier die beiden äusseren Scheiben von Trägern und Stützen örtlich halbrund ausgeschnitten. Je eine Bohrung in den zu fügenden Gläsern – mit eingesetzten Gewindebüchsen – lässt die beidseitigen Edelstahlrondellen mit Senkkopfschrauben fest zusammenziehen. Umlaufende schwarze SG-Fugen verhindern das Eindringen von Wasser und grenzen die Metallteile klar vom Glas ab.

 

Skizze: Cladding AGVertikalschnitt (links) und Ansicht durch die Glasfügung. Oben der Glasträger, unten die Glasstütze. Als Verbindungs- und Stabilisationsplatten dienen Edelstahl-Rondellen.
Skizze: Cladding AG
Vertikalschnitt (links) und Ansicht durch die Glasfügung. Oben der Glasträger, unten die Glasstütze. Als Verbindungs- und Stabilisationsplatten dienen Edelstahl-Rondellen.

 

 

Bild: Mario RussiGlasstützen bei der Vorbereitung im Werk der Glas Trösch AG. Gut zu erkennen sind die halbrunden Ausschnitte sowie die unterschiedlichen Glaslängen (innen / aussen) für einen passenden Sitz in den Schuhprofilen.
Bild: Mario Russi
Glasstützen bei der Vorbereitung im Werk der Glas Trösch AG. Gut zu erkennen sind die halbrunden Ausschnitte sowie die unterschiedlichen Glaslängen (innen / aussen) für einen passenden Sitz in den Schuhprofilen.

 

Bild: B auherrschaft Die Geländerrohre durchdringen die Glasstützen. Die Glasbohrungen sind ebenfalls mit schwarzer Dichtmasse ausgestrichen. Die Abschlüsse werden durch Edelstahl-Manschetten gebildet.
Bild: B auherrschaft
Die Geländerrohre durchdringen die Glasstützen. Die Glasbohrungen sind ebenfalls mit schwarzer Dichtmasse ausgestrichen. Die Abschlüsse werden durch Edelstahl-Manschetten gebildet.

Dachglas

Die mit Distanz aneinandergefügten Dachgläser lagern je einseitig, gestützt von einem harten Gummiprofil (80 Shore), auf den Glasträgern. Oben sorgt eine durchlaufende Wetterversiegelung für die Dichtung, unten eine umlaufende SSG-Verklebung für die Verbindung zwischen Träger und Glas.

 

Bild: Mario RussiEin vorgängig erstelltes, präzises Holzgerüst diente als Lehre bei der Glasmontage.
Bild: Mario Russi
Ein vorgängig erstelltes, präzises Holzgerüst diente als Lehre bei der Glasmontage.

Präzise Montage

Eine nicht zu unterschätzende Herausforderung für die beauftragte Firma Merkle Metallbau AG, Chur, bildete zweifelsohne die höchst präzise Montage dieses Werks. Insbesondere auch darum, weil sämtliche Konsolen und Schuhprofile vor der Glasbelegung zu platzieren, auszurichten und zu verankern waren. Um Toleranzen und Abweichungen auf ein Minimum zu reduzieren, wurde für die Einmessarbeiten ein Geometer beigezogen.
Für eine äusserst exakte Montage der Gläser entschieden sich die Verantwortlichen der Merkle Metallbau AG, eine Hilfskonstruktion aus Holz zu planen, zu bauen und vor der Glasanlieferung aufzurichten. Diese war so konstruiert, dass sich die einzelnen Gläser von den Holzkanten geführt einsetzen liessen.
Als ebenfalls nicht ganz einfache Mission erwies sich das Ausfugen der liegenden, horizontalen Glasstösse mit der schwarzen SG-Klebemasse, denn diese erinnert in der Konsistenz eher an eine joghurtähnliche Masse als an ein typisches Bausilikon.
Die enge Zusammenarbeit der beteiligten Unternehmungen und die klaren Vorstellungen der Bauherrschaft führten zu einem äusserst eleganten und bestens gelungenem Werk.  ■

Bautafel 

Objekt:

Wohnhaus Schweiz

Architektur, Statik, Entwicklung:

Cladding AG, Landquart mit Bauherr

Metallbau und Gesamtmontage:

Merkle Metallbau AG, Chur

Glasherstellung:

Glas Trösch AG, Gossau SG

 

Das Fachregelwerk Metallbauerhandwerk – Konstruktionstechnik enthält im Kap. 1.10 wichtige Informationen zum Thema «Konstruktiver Glasbau».