November 2022
November 2022
Abo

Gläserne Pucks an der Fassade

Fassadenbau

Aus der Ferne wirkt sie wie eine raue Eisfläche mit nebeneinander aufgereihten Pucks. Die weisse Fassade der Swiss Life Arena – die neue Halle der ZSC Lions – nimmt direkt Bezug zum sportlichen Geschehen im Inneren. Mehr als 300 Rundfenster aus Metall und Glas durchfluten das Innere mit Tageslicht und lassen das Gebäude in unverkennbarer Art erscheinen.


Login

Danke für Ihr Interesse an unseren Inhalten. Abonnenten der Fachzeitschrift metall finden das Login für den Vollzugriff im Impressum der aktuellen Printausgabe. Das Passwort ändert monatlich.


Jetzt registrieren und lesen. Registrieren Sie sich um einzelne Artikel zu lesen und einfach per Kreditkarte zu bezahlen. (CHF 5,- pro Artikel)
Als registrierter Benutzer haben Sie jederzeit Zugriff auf Ihre gekauften Artikel.

Sollten Sie als interessierte Fachkraft im Metall-, Stahl- und Fassadenbau die Fachzeitschrift metall tatsächlich noch nicht abonniert haben, verlieren Sie keine Zeit und bestellen Sie Ihr persönliches Abonnement gleich hier.

Insgesamt 315 dunkle Rundfenster beleben die weisse Betonfassade der Swiss Life Arena in Zürich-Altstetten.
Insgesamt 315 dunkle Rundfenster beleben die weisse Betonfassade der Swiss Life Arena in Zürich-Altstetten.

 

Fassadenbau

Gläserne Pucks an der Fassade

Aus der Ferne wirkt sie wie eine raue Eisfläche mit nebeneinander aufgereihten Pucks. Die weisse Fassade der Swiss Life Arena – die neue Halle der ZSC Lions – nimmt direkt Bezug zum sportlichen Geschehen im Inneren. Mehr als 300 Rundfenster aus Metall und Glas durchfluten das Innere mit Tageslicht und lassen das Gebäude in unverkennbarer Art erscheinen.

Text: Redaktion / Bilder: Albert Surber und ZSC Lions

Die neue Eishockeyhalle der ZSC Lions in Zürich-Altstetten ist fertiggestellt und wurde am 18. Oktober mit dem Heimspiel gegen Gottéron – das mit einem Sieg für die Gastgeber endete – offiziell eröffnet.
Nach einer rund dreijährigen Bauzeit konnte die von Caruso St John Architects geplante Halle, die 12 000 Personen Platz bietet, dem Spielbetrieb übergeben werden. Ein ausgeklügeltes Bewirtschaftungskonzept sowie die gezielt darauf ausgerichteten Infrastrukturen überzeugen genauso wie das bautechnisch Geleistete.
Ein Blick an die Fassade genügt, um zu erkennen, dass sich in diesem Gebäude etwas ganz besonderes abspielt. Die helle Betonstruktur in Kombination mit den schwarzen Rundfenstern – die eben wie Eishockey-Pucks wirken – transferieren das sportliche Innenleben unmissverständlich nach aussen.

 

Rundfenster mit speziellem Rahmenprofil

An der Nord- und Südfassade des 170 m langen, 110 m breiten und 33 m hohen Gebäudes sind exakt 315 Rundfenster – mit einem Durchmesser von 2,0 m – eingebaut. Für die Entwicklung, Herstellung und Montage war die Surber Metallbau AG, Dietikon, verantwortlich.
Im Grundsatz bestehen die Rundfenster aus einer äusseren, thermisch getrennten Profilierung, und einer inneren, die ganze Mauer- und Isolationsstärke bedeckenden Blechzarge von 520 mm Tiefe. Die Dreifach-Sicherheitsverglasung ist als Stufenisolierglas mit Sonnen-Wärmeschutzbeschichtung ausgebildet und mit dem Aluminium-Rahmenprofil verklebt.
«Auch wenn der Blick auf den Plan das Rahmenprofil mit dem Glas schlicht und einfach erscheinen lässt, erforderte diese Entwicklung und Lösung doch einiges an Denksport», erläutert Thomas Baumann, verantwortlicher Senior Projektleiter bei der Surber Metallbau AG, im Gespräch. «Bereits in der Angebotsphase war uns klar», – so Baumann weiter – «dass wir für den Rahmen ein neues Aluminiumprofil entwickeln und pressen werden. Ein Kernprofil, das sich möglichst verwindungsfrei im Radius walzen lässt, das Glas und weitere isolierende und abdeckende Komponenten aufnimmt und schlussendlich den bauphysikalischen, statischen und ästhetischen Bedürfnissen gerecht wird.»
  

Innenansicht der Fenster während der Bauphase. Die Fenster mit ihren Zargen überbrücken die gesamte Fassaden- und Mauerstärke.
Innenansicht der Fenster während der Bauphase. Die Fenster mit ihren Zargen überbrücken die gesamte Fassaden- und Mauerstärke.

 

 

Aufgrund des doch engen Innendurchmessers von 1781 mm entschieden sich die Verantwortlichen, die Profilrahmen jeweils zweiteilig, aus zwei Bogen zu je 180°, herzustellen. Für die Verbindung dieser zwei Halbkreise wurde ein mechanisches Verbindungsprofil entwickelt und hergestellt. Durch die saubere Stossverbindung konnten die Rahmen Wasser- und Dampfdicht, ohne ästhetische Kompromisse, verarbeitet werden. Die speziellen Verbindungsteile gewährleisten ein Zusammenfügen der beiden Bogenenden bis zum letzten Millimeter als Radius laufend und 360°-Bogen.
Die farblos eloxierte Innenzarge aus 3 mm starkem Aluminiumblech stellte hohe Ansprüche an ihre Machbarkeit dar. Die Zarge wurde ohne Materialstoss mit einem zusätzlichen 30 mm hohen und angewalzten 90°-Abbug ausgeführt. Die Vorgaben für eine absolut linear und rund verlaufende Innenkante ohne Materialdeformierung und Walzschäden konnten eingehalten werden und runden das einheitliche Gesamtbild des Fensters von innen ab. 

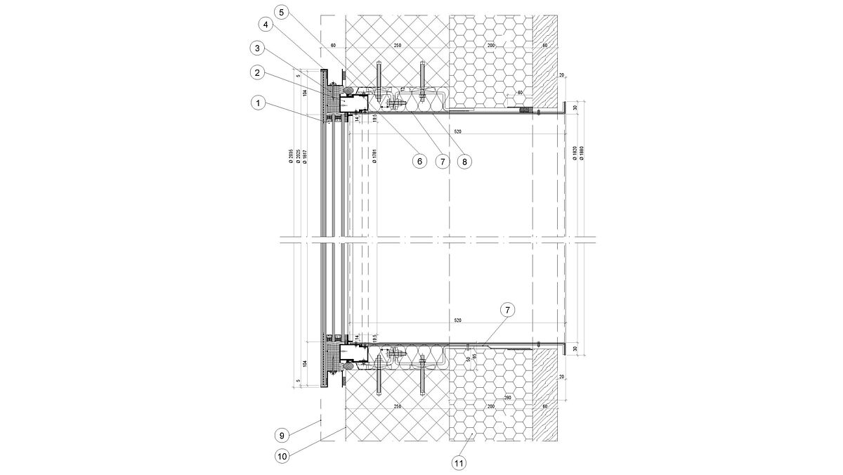
Vertikalschnitt Rundfenster:1 Stufen-Isolierglas mit schwarzem Siebdruck im Stufenbereich2 Aluminium-Rahmenprofil3 Isolator4 Anschlussprofil (Wasserführung)5 Befestigungskonsolen6 Dichtfolie / Fahnendichtung7 Dampfsperrfolie8 Blechzarge Aluminium 3 mm9 Beton, äussere Ebene (Welle)10 Beton, innere, flache Anschlagsebene für Fenster11 Isolation (Foam)
Vertikalschnitt Rundfenster:
1 Stufen-Isolierglas mit schwarzem Siebdruck im Stufenbereich
2 Aluminium-Rahmenprofil
3 Isolator
4 Anschlussprofil (Wasserführung)
5 Befestigungskonsolen
6 Dichtfolie / Fahnendichtung
7 Dampfsperrfolie
8 Blechzarge Aluminium 3 mm
9 Beton, äussere Ebene (Welle)
10 Beton, innere, flache Anschlagsebene für Fenster
11 Isolation (Foam)

 

Gläser im Werk verklebt

Die Stufen-Isoliergläser wurden im Werk der Surber Metallbau AG unter schmutz- und staubfreien Bedingungen mit den Profilrahmen gemäss den Standards für Structural-Glazing zu einer Einheit verklebt. Die speziellen, schwenkbaren Montagetische in der Produktion boten die optimale Plattform. Sämtliche für Glasverklebungen erforderlichen technischen Vorgaben, Prüfungen und Klebetests wurden laufend durchgeführt und protokolliert. Der Zusammenbau der Rahmen-Glaselemente mit den Montagekonsolen war gleichzeitig der Startschuss für die Montage. Die so kompletten Rundfenster wurden auf der Baustelle mithilfe von Kran und Glassauganlage in die vorbereiteten Fassadenaussparungen eingefügt und verschraubt.
Nach erfolgtem Anbringen der Innendämmung und der Dampfdichtungsfolien konnten die Innenzargen über die Befestigungen verdeckt von der Innenseite her montiert werden.
Der Montageprozess der Fenster verlief kontinuierlich, parallel aber zeitlich zurückversetzt zur Erstellung der Betonfassade. 

Die wellige Betonfassade wurde am Bau geschalt und vergossen. Ob sie tatsächlich an textile Formen erinnert, so wie es einzelne Betrachter meinen, darüber lässt sich philosophieren.
Die wellige Betonfassade wurde am Bau geschalt und vergossen. Ob sie tatsächlich an textile Formen erinnert, so wie es einzelne Betrachter meinen, darüber lässt sich philosophieren.

 

Optimierter Glasaufbau für Nord und Süd

Dank genau abgestimmter Glasqualitäten werden die Fenster den unterschiedlichen Ansprüchen der Nord- und der Südfassade gerecht. Es handelt sich um ein abgestuftes Dreifach-Isolierglas mit einem äusseren Verbundsicherheitsglas aus zwei teilvorgespannten Gläsern (TVG) sowie zwei Einscheibensicherheitsgläsern (ESG). Der Überstand der äusseren Scheibe erhielt einen tiefschwarzen Randsiebdruck, der den Glasverbund optisch verdeckt. Die Verglasung erfüllt durch genau aufeinander abgestimmte Glasqualitäten – aus dem Sortiment von Saint-Gobain Glass – die hohen bauphysikalischen Anforderungen. Die inneren Gläser weisen besondere, lichtdurchlässige Eigenschaften mit hoher Farbneutralität auf.

Je nach Lichteinfall entstehen unterschiedliche und lebendige Wirkungen.
Je nach Lichteinfall entstehen unterschiedliche und lebendige Wirkungen.

 

 

Im Zusammenwirken mit zwei Wärmeschutzbeschichtungen erreicht der Aufbau in der Nordfassade einen Ug-Wert von 0,628 W/m²K und dabei gleichzeitig eine hohe Lichttransmission von 70,2 %. Für die Südfassade wurde der Aufbau unter dem Aspekt des Hitzeschutzes modifiziert und das hochselektive Sonnenschutzglas Cool-Lite xtreme 60/28 in den Aufbau integriert.
Die Südfenster erreichen ebenfalls einen ausgezeichneten Wärmeschutz, zeichnen sich aber vor allem durch einen niedrigen Gesamtenergiedurchlass von 0,2423 aus, wodurch eine Überhitzung der Innenräume auch bei starker Sonneneinstrahlung vermieden wird.   ■

 

Bild: ZSC: Die Süd- und die Nordfassade sind mit transparenten Rundfenstern bestückt. Ost- und Westfassade sind homogen.
Bild: ZSC: Die Süd- und die Nordfassade sind mit transparenten Rundfenstern bestückt. Ost- und Westfassade sind homogen.

 

 

Bautafel 

Objekt:

Neubau Swiss Life Arena, Zürich

Bauherr:

ZSC Lions Arena Immobilien AG, Zürich

Generalunternehmer:

HRS Real Estate AG, Zürich

Architekten:

Caruso St John Architects, London und Zürich

Fensterbau / Metallbau:

Surber Metallbau AG, Dietikon

 

Das Fachregelwerk Metallbauerhandwerk – Konstruktionstechnik enthält im Kap. 2.1 wichtige Informationen zum Thema «Fenster».

 

Technische Daten

Anzahl Rundfenster:

315 Stück (160 Stück Nord- und 155 Stück Südfassade

Oberfläche:

E6/EV1 farblos eloxiert, Schichtdicke min. 20 my

Zarge:

Aluminiumblech 3 mm

Glas :

Dreifach-Stufenisolierglas, t = 57,5 mm, Ug = 0,6 W/m 2 K, RW 48 dB – 4 Ctr.

Grösse Glas:

Durchmesser = 2025 mm, total ca. 1015 m 2