Februar 2024
Februar 2024
Abo

Geschwungen und einprägsam

Glasgeländer

In der Innenstadt von Essen entstand ein neues Quartier. Es setzt sich aus mehreren Gebäuden zusammen, von denen ein Wohnturm aufgrund seiner Höhe und seiner auffälligen Fassade die meiste Aufmerksamkeit auf sich zieht. Sein Erscheinungsbild wird massgeblich durch die geschwungenen Balkone und die Brüstungen von Glas Marte beeinflusst.


Login

Danke für Ihr Interesse an unseren Inhalten. Abonnenten der Fachzeitschrift metall finden das Login für den Vollzugriff im Impressum der aktuellen Printausgabe. Das Passwort ändert monatlich.


Jetzt registrieren und lesen. Registrieren Sie sich um einzelne Artikel zu lesen und einfach per Kreditkarte zu bezahlen. (CHF 5,- pro Artikel)
Als registrierter Benutzer haben Sie jederzeit Zugriff auf Ihre gekauften Artikel.

Sollten Sie als interessierte Fachkraft im Metall-, Stahl- und Fassadenbau die Fachzeitschrift metall tatsächlich noch nicht abonniert haben, verlieren Sie keine Zeit und bestellen Sie Ihr persönliches Abonnement gleich hier.

Das Glas der Balkonbrüstungen ist gebogen, was für viele Befestigungssysteme eine Herausforderung ist.
Das Glas der Balkonbrüstungen ist gebogen, was für viele Befestigungssysteme eine Herausforderung ist.

 

Glasgeländer

Geschwungen und einprägsam

In der Innenstadt von Essen entstand ein neues Quartier. Es setzt sich aus mehreren Gebäuden zusammen, von denen ein Wohnturm aufgrund seiner Höhe und seiner auffälligen Fassade die meiste Aufmerksamkeit auf sich zieht. Sein Erscheinungsbild wird massgeblich durch die geschwungenen Balkone und die Brüstungen von Glas Marte beeinflusst.

Text und Bilder: Dipl.-Ing. Claudia El Ahwany

Im vergangenen Jahr wurde in Essens Innenstadt ein neues Zentrum für Leben, Arbeiten und Erholen fertiggestellt: das Huyssen Quartier. Es besteht aus fünf Gebäuden: einem Wohnturm, zwei Mehrfamilienhäusern und zwei Bürobauten. Vier von ihnen wurden neu errichtet, eines saniert. In den Objekten sind mehrere Büros und Ladenlokale für Einzelhandel oder Gastronomie sowie knapp 110 Wohnungen untergebracht, von denen ein Teil öffentlich gefördert wurde.

 

Ein Solitär

Optisches Highlight des Ensembles ist der Wohnturm. Er ist 60 m hoch und hat damit eine Höhe, die sowohl für die Stadt Essen als auch für das ganze Ruhrgebiet ungewöhnlich ist. Der Solitär befindet sich direkt gegenüber der Philharmonie, die nach den Plänen des finnischen Stararchitekten Alvar Aalto errichtet wurde. Ihr verdankt der Turm nicht nur den Namen «Phil», sondern auch seine aussergewöhnliche Fassade. Denn die Planer liessen sich von der Bogen- und Linienführung der Oper inspirieren und nahmen diese bei der Gestaltung des Wohnturms auf. So besitzt das Gebäude zahlreiche Balkone, die es wellenartig umspielen. Ihre Brüstungen stammen von Glas Marte und zeichnen sich durch ein Glas aus, das mit drei verschiedenen Siebdruck-Motiven veredelt wurde.  

Das Glas der Balkonbrüstungen ist gebogen, was für viele Befestigungssysteme eine Herausforderung ist.
Das Glas der Balkonbrüstungen ist gebogen, was für viele Befestigungssysteme eine Herausforderung ist.

 

Siebdruck

Das Design hierzu hat der Hersteller nicht nur entworfen, sondern auch selbst auf das Glas gebrannt. Weil dies mit Temperaturen von über 600 °C geschieht, sind die Siebdrucke derart fest mit der Oberfläche verbunden, dass weder Witterung noch Lösungsmittel sie beeinträchtigen können. Darüber hinaus sind sie kratzfest sowie lichtecht. Dank seiner hauseigenen Siebdruckanlage kann Glas Marte schnell und flexibel auf Kundenwünsche reagieren. So ist der Hersteller beispielsweise auch in der Lage, fast jede gewünschte Farbe zu mischen. Doch auf diesen Service verzichteten die Planer des Huyssen Quartiers und entschieden sich stattdessen für ein Linienmotiv in strahlendem Weiss.   

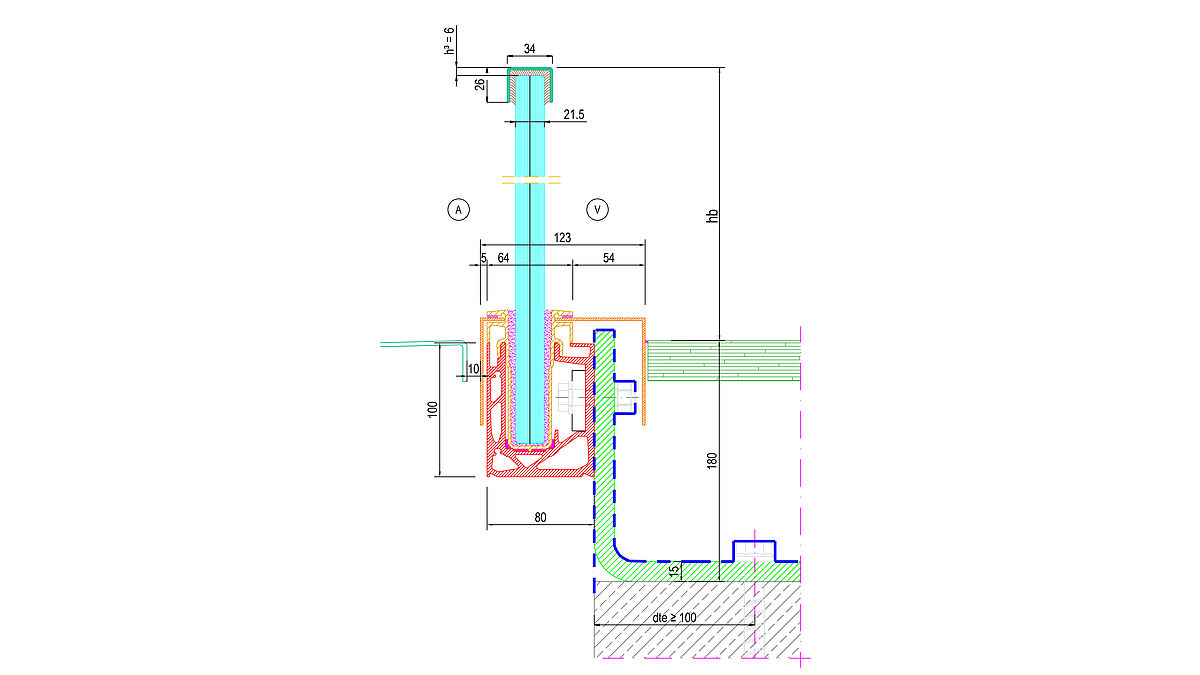
Die Unterkonstruktion des GM Railing Double Side besteht aus einem U-Profil, in welches das vorgefertigte Glaselement eigeklebt wird.
Die Unterkonstruktion des GM Railing Double Side besteht aus einem U-Profil, in welches das vorgefertigte Glaselement eigeklebt wird.

 

Sicher und ästhetisch

Die so bearbeiteten Gläser wurden von Glas Marte in das Glasgeländer-System GM Railing Double Side eingesetzt. Es hat den Vorteil, dass es nicht nur sehr ästhetisch ist, sondern sich zudem leicht montieren lässt und ein Höchstmass an Komfort und Sicherheit bietet. Beispielsweise kehrt das Geländer, selbst bei hohen Belastungen, immer wieder in die ursprüngliche Position zurück – ein Vorteil, den nur ungefähr 10 Prozent der am Markt befindlichen Systeme bieten. Die Glaselemente der Brüstung werden bereits im Werk unter höchsten Qualitätskriterien in das Einhängeprofil geklebt, wodurch Wasser oder sonstige Fremdkörper die Glaslagerung nicht beeinträchtigen können. Die Unterkonstruktion besteht aus einem U-Profil (80 x 100 mm), in dessen Schenkel die anfallenden Kräfte gleichmässig eingeleitet werden. Ein und dasselbe Profil eignet sich für Glasdicken von 16, 20 und 24 mm. Eine Tatsache, die beim Wohnhochhaus eine beachtliche Rolle spielte, denn für seine Balkonbrüstungen waren sechs unterschiedliche Glasscheiben in drei Biegeradien nötig, jeweils in mehrfacher Ausführung. Dank des gut durchdachten Systems sind zur Montage von GM Railing Double Side keine Befestigungsklötzchen, Keile oder Ähnliches erforderlich, die Spannungen im Glas hervorrufen könnten. Ein Aspekt, der immer, aber vor allem bei solch gebogenem Glas, wie es beim Huyssen Quartier zum Einsatz kam, eine wichtige Rolle spielt.  

Montage

Und so war auch die einfache und sichere Montage des Systems ein Kriterium, das dazu beitrug, dass sich die Verantwortlichen für diese Glasbrüstung entschieden. Befestigt wurde sie von der Firma Werner Neumann GmbH aus Kevelaar. Das Unternehmen ist ein wichtiger Partner von Glas Marte und hat schon in ganz Deutschland beeindruckende Projekte verwirklicht. Beim Huyssen Quartier haben seine Mitarbeiter insgesamt 1240 m GM Railing Double Side verbaut. Hierzu mussten sie lediglich das U-förmige Profil des Systems mithilfe von Schrauben auf dem Untergrund befestigen und den Injektionsmörtel einbringen. Anschliessend konnten sie das Glasmodul einhängen, ausrichten und die Fugen zwischen den Gläsern abdichten. Dementsprechend waren die Mitarbeiter der Montagefima auch in der Lage, die Balkonbrüstungen in kürzester Zeit am Gebäude anzubringen.
www.glasmarte.at     ■

 

Das Fachregelwerk Metallbauerhandwerk – Konstruktionstechnik enthält im Kap. 2.38.1 wichtige Informationen zum Thema «Geländer».