Oktober 2020
Oktober 2020
Abo

Gebaut für morgen

Fenstertechnik

Zu seiner Einweihung 1953 war das 15-geschossige Plärrer-Hochhaus in Nürnberg das höchste Gebäude Bayerns. Geprägt ist der Komplex von rund 1060 Schwingflügelfenstern, die in einer aktuellen Sanierung wiederhergestellt wurden – im Sinne der Denkmalpflege, ohne aber auf moderne Anforderungen wie Wärmeschutz und Langlebigkeit zu verzichten.


Login

Danke für Ihr Interesse an unseren Inhalten. Abonnenten der Fachzeitschrift metall finden das Login für den Vollzugriff im Impressum der aktuellen Printausgabe. Das Passwort ändert monatlich.


Jetzt registrieren und lesen. Registrieren Sie sich um einzelne Artikel zu lesen und einfach per Kreditkarte zu bezahlen. (CHF 5,- pro Artikel)
Als registrierter Benutzer haben Sie jederzeit Zugriff auf Ihre gekauften Artikel.

Sollten Sie als interessierte Fachkraft im Metall-, Stahl- und Fassadenbau die Fachzeitschrift metall tatsächlich noch nicht abonniert haben, verlieren Sie keine Zeit und bestellen Sie Ihr persönliches Abonnement gleich hier.

 1060 Schwingflügelfenster charakterisierten das Plärrer-Hochhaus in Nürnberg.
 1060 Schwingflügelfenster charakterisierten das Plärrer-Hochhaus in Nürnberg.

Fenstertechnik

Gebaut für morgen

Zu seiner Einweihung 1953 war das 15-geschossige Plärrer-Hochhaus in Nürnberg das höchste Gebäude Bayerns. Geprägt ist der Komplex von rund 1060 Schwingflügelfenstern, die in einer aktuellen Sanierung wiederhergestellt wurden – im Sinne der Denkmalpflege, ohne aber auf moderne Anforderungen wie Wärmeschutz und Langlebigkeit zu verzichten.

Forster Profilsysteme AG

Im fast vollkommen zerstörten Nürnberg wurde 1953 nach Plänen von Wilhelm Schlegtendal das Plärrer-Hochhaus fertiggestellt. Neben dem Hochhaus gehört zu dem damals entstandenen Ensemble der Städtischen Werke Nürnberg noch ein dreigeschossiger Gebäuderiegel. 1060 Schwingflügelfenster charakterisierten diese beiden Bauteile. Aufgrund der Einfachverglasung und der entsprechend schlechten Wärmedämmung wurden jedoch alle Fenster in den 1980er-Jahren durch besser gedämmte, schlichte Drehkippflügelfenster ersetzt.

Originaltreue

Als ehemals höchster Bau des Freistaats stand und steht das Hochhaus am Plärrer unter einem «besonders wachen Auge der Denkmalpflege». Dies erläutert Gunnar Sellien, projektleitender Architekt im Büro Knerer und Lang, das mit der Sanierung beauftragt war. Bei diesem 2016 gestarteten Projekt ging es aber um mehr, als den gesamten Gebäudekomplex an die geforderten Normen hinsichtlich des Brand-, Wärme- und Schallschutzes anzupassen. «Vorgabe war auch, das ursprüngliche Erscheinungsbild des Ensembles wiederherzustellen, das 1988 unter Denkmalschutz gestellt wurde», wie Sellin weiter erklärt. So musste auf die Fassade, bestehend aus Fensterbrüstungen aus Bimsstein und einer ablesbaren Betonkonstruktion, nachträglich ein Wärmedämmverbundsystem aufgebracht werden. Eine Herausforderung bestand auch in der originalgetreuen Wiederherstellung der filigranen Schwingflügelfenster, die dem Erscheinungsbild des Hauses seine besondere Note gaben. Ausgeschrieben wurde ein «Schwing-Verbundfenster mit integriertem Sonnenschutz und innenliegendem Drehflügel für Revisions- und Reinigungsarbeiten bei geschlossener Schwingfunktion». Jürg Egli, Leiter Objektmanagement bei der Forster Profilsysteme AG, erklärt schmunzelnd, dass diese sperrige Fachbezeichnung anschaulich die Komplexität der entwicklungstechnischen Herausforderung beschreibt.

Prototyp entwickelt

Über eine europaweite Ausschreibung aufmerksam geworden, entwickelte die Forster Profilsysteme AG als möglicher Systemgeber zusammen mit den Architekten einen Prototyp. Der projektleitende Architekt Sellien betont, wie beeindruckt er vom Engagement des Schweizer Unternehmens war, das einen prüffähigen Prototyp zu entwickeln bereit war. Damit war es nicht nur möglich, dem Bauherrn von der N-ERGIE Aktiengesellschaft ein funktionierendes Fensterelement vorzustellen, sondern auch die geforderten Nachweise hinsichtlich mechanischer Beanspruchung, Dauerfunktion, Stossfestigkeit, Schalldämmung und Tauwasserverhalten zu erbringen. 

Schwergewichte

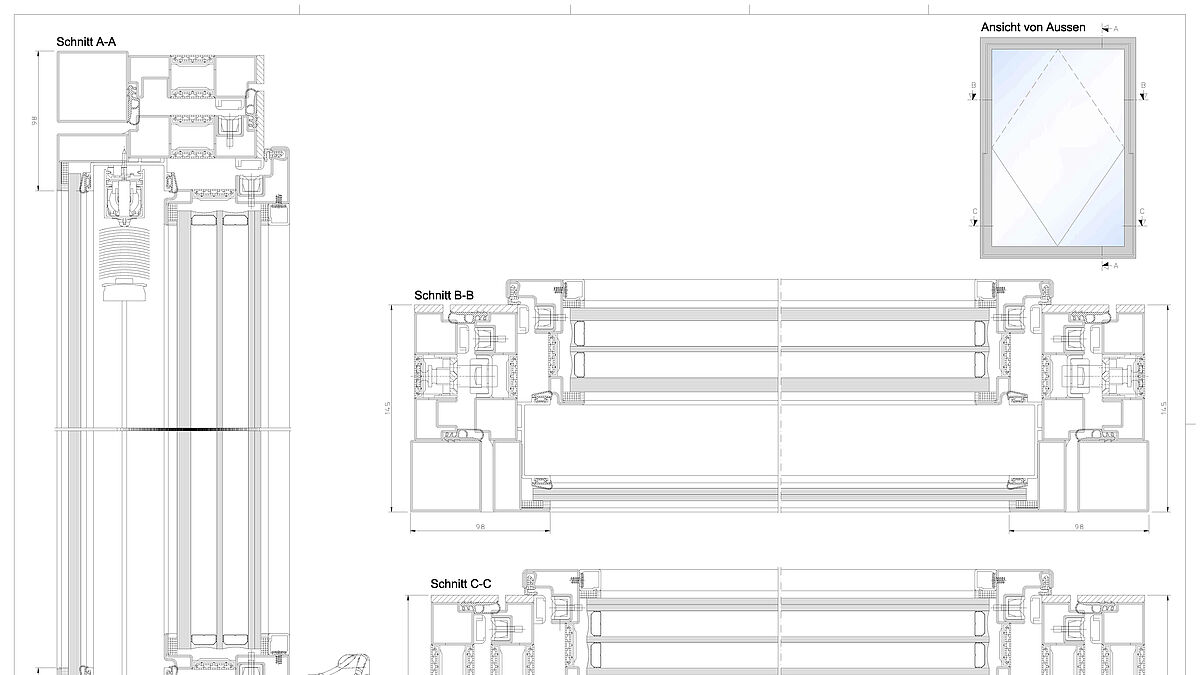
Die Schwingflügel aller Fenster kann man sich als ein 16 cm starkes Kasten-Verbundfenster mit integriertem Sonnenschutz vorstellen. An diesen wie auch an die Glasscheiben gelangt man zu Revisions- und Reinigungszwecken über einen innenseitigen Drehflügel, der mit einem Steckgriff entriegelt wird. Während die aussenliegende Prallscheibe aus gehärtetem VSG-Glas besteht, erfolgt die Wärmedämmung über die Dreifachisolierverglasung, die im inneren Revisionsflügel sitzt. Alle Gläser sind ungetönt, der Sonnenschutz erfolgt mit elektrischen Raffstore-Lamellen.
Die jeweils 1853 mm hohen und 1310 mm breiten Schwingflügelfenster sind mit 250 kg ausgesprochen schwer, hinzu kommt der Aussenrahmen mit weiteren 50 kg. «Statt wie davor die insgesamt 300 kg schweren Einheiten auf den Bimssteinbrüstungen zu platzieren, ruhen sie jetzt auf stählernen U-Profilen, die wir zwischen die Fassadenstützen eingezogen haben», erklärt Gunnar Sellien.

Das von Forster entwickelte Schwing-Verbundfenster mit integriertem Sonnenschutz und innenliegendem Drehflügel für Revisions- und Reinigungsarbeiten bei geschlossener Schwingfunktion.
Das von Forster entwickelte Schwing-Verbundfenster mit integriertem Sonnenschutz und innenliegendem Drehflügel für Revisions- und Reinigungsarbeiten bei geschlossener Schwingfunktion.

Langlebigkeit mit Liebe zum Detail

Der Bauherr mass der Langlebigkeit der Fensterrahmen eine grosse Bedeutung bei; sie sollte den üblichen Lebenszyklus von 25 bis 30 Jahren weit übertreffen. Drei sorgfältig geplante Details tragen wesentlich zur geforderten Langlebigkeit der Lösung bei: das Drehlager, der Isolator und der geringe Ausdehnungskoeffizient der Stahlrahmen. Bei dem Drehlager handelt es sich um einen dickwandigen Hohlbolzen von 15 mm Durchmesser, durch dessen Inneres die Sonnenschutzverkabelung verläuft. Da die Schwingfenster nur um rund 12 cm geöffnet werden müssen, beträgt der Scherwinkel gerade einmal 7,5°, was eine geringe Torsion für das im Drehlager integrierte Schwachstromkabel bedeutet.
Die Schwingrahmen bauen auf dem Profil Forster Unico auf. Forster setzt nicht auf Kunststoffisolatoren, die zwischen dem inneren und dem äusseren bandverzinkten Stahlrahmen sitzen, sondern auf ein hochwertiges Edelstahl-Gitterwerk. Der grosse Vorteil von Edelstahl ist, dass er nicht wie Kunststoff mit den Jahren versprödet und brüchig wird. Darüber hinaus reduziert dieser Isolator auch die Brandlast. Im Brandfall ist der Isolator kein Brandbeschleuniger und bildet auch keine Giftgase. Herunterfallende Fensterhalbschalen infolge brennender Isolatoren kann es bei diesem Hochhaus nicht geben.
Im Stahlfensterbau sind die Rahmenecken nicht auf Gehrung gestossen, sondern zu einer Einheit verschweisst. So gibt es keine Stossfugen, durch die Feuchtigkeit in die Rahmen eindringen kann. Deren Oberflächen wurden in der Korrosivitätskategorie C4 veredelt und mit einem UV-beständigen, hellen Farbton überzogen.
Verschlossen werden die Schwingfenster mittels vierseitigen Beschlagsteilen, die sich umlaufend in ihren Aussenrahmen verriegeln und allseitig festziehen. Nur so konnten eine für das Hochhaus ausreichende Windsog- und Wasserdichtigkeit sowie die Schallschutzanforderung von 47 dB erreicht werden.
Als Nachweis seiner Langlebigkeit hat die Forster Profilsysteme AG das Schwingflügelfenster einer Dauerfunktionsprüfung unterzogen. Dabei wurden die üblichen Testreihen, die zwischen 5000 und 20 000 Zyklen liegen, um den Faktor 10 übertroffen: Für die Schwingfenster am Plärrer-Hochhaus wurde der Nachweis von 200 000 Zyklen erbracht.

Gläserne Ecken auf dem Dach

Ausser den Schwingfenstern des Hochhauses und des dreigeschossigen Werkstatttraktes musste auch die Festverglasung des obersten Staffelgeschosses erneuert werden. Zum Einsatz kam hier das Pfosten-Riegel-Fassadensystem Forster Thermfix Vario Hi. Es weist eine Ansichtsbreite von lediglich 45 mm auf und besitzt einen Uf-Wert von 0,49  W. Damit war es kein Problem, bei einer zeitgemässen Wärmedämmung den ursprünglichen Charakter zu wahren: Dem Original entsprechend, wurde die Glasfassade nach innen geneigt. Zudem zeigen die äusseren Profilleisten weiterhin die Köpfe der Schrauben, die das Glas in der Unterkonstruktion halten. Die umlaufende Verglasung weist Glasecken auf, die durch ein schmales Profil kaschiert sind. Neu eingefügt sind zwei Fluchtfenster, ausgeführt im System Forster Unico. Sie ermöglichen im Brandfall eine Rettung auf die Dachterrasse.

Nach knapp vierjähriger Sanierung präsentieren sich die Fenster des Hochhauses am Plärrer wieder so attraktiv wie 1953. «Die ursprüngliche Formensprache ist wieder sichtbar. Es war die beste verfügbare technische Lösung, die Forster Profilsysteme AG angeboten hat», ist Gunnar Sellien überzeugt. ■

Der grosse Vorteil von Edelstahl ist, dass er nicht wie Kunststoff mit den Jahren versprödet und brüchig wird.

Bautafel / Panneau de chantier

Objekt

Plärrer Hochhaus Berlin

Architekt

Knerer und Lang Architekten, Dresden

Metallbauer

MTZ Metalltechnik Zitzmann, Oerlenbach

Profillieferant

Forster Profilsysteme AG, Arbon

Das Fachregelwerk Metallbauerhandwerk – Konstruktionstechnik enthält im Kap. 2.1 wichtige Informationen zum Thema «Fenster».