Dezember 2023
Dezember 2023
Abo

Fluchtwegtechnik – das Wichtigste in Kürze

Fluchttüren

Fluchttüren müssen sich auf einfache Weise durch Herabdrücken des Drückers, Betätigen der Panikstange oder automatisch öffnen lassen. Für die Hersteller soll es das Ziel sein, Türen in Fluchtwegen so zu planen und zu produzieren, dass sowohl die gesetzlichen und normativen wie auch die betrieblichen Anforderungen erfüllt werden.


Login

Danke für Ihr Interesse an unseren Inhalten. Abonnenten der Fachzeitschrift metall finden das Login für den Vollzugriff im Impressum der aktuellen Printausgabe. Das Passwort ändert monatlich.


Jetzt registrieren und lesen. Registrieren Sie sich um einzelne Artikel zu lesen und einfach per Kreditkarte zu bezahlen. (CHF 5,- pro Artikel)
Als registrierter Benutzer haben Sie jederzeit Zugriff auf Ihre gekauften Artikel.

Sollten Sie als interessierte Fachkraft im Metall-, Stahl- und Fassadenbau die Fachzeitschrift metall tatsächlich noch nicht abonniert haben, verlieren Sie keine Zeit und bestellen Sie Ihr persönliches Abonnement gleich hier.

Türen in Flucht- und Rettungswegen müssen sich jederzeit in Fluchtrichtung, leicht und in der vollen geforderten Breite öffnen lassen.
Türen in Flucht- und Rettungswegen müssen sich jederzeit in Fluchtrichtung, leicht und in der vollen geforderten Breite öffnen lassen.

 

Fluchttüren

Fluchtwegtechnik – das Wichtigste in Kürze

Fluchttüren müssen sich auf einfache Weise durch Herabdrücken des Drückers, Betätigen der Panikstange oder automatisch öffnen lassen. Für die Hersteller soll es das Ziel sein, Türen in Fluchtwegen so zu planen und zu produzieren, dass sowohl die gesetzlichen und normativen wie auch die betrieblichen Anforderungen erfüllt werden.

Text und Bilder: Redaktion

Über die gesetzlichen Mindestanforderungen an Türen in Fluchtwegen entscheidet die zuständige Brandschutzbehörde und – sobald Arbeitsplätze betroffen sind – auch das Arbeitsinspektorat.
Die nach SN EN 179 und SN EN 1125 geprüften Verschlusssysteme erfüllen die Forderung, dass sich Türen in Flucht- und Rettungswegen jederzeit in Fluchtrichtung, leicht und in der vollen, geforderten Breite öffnen lassen. Demzufolge müssen Türen in Fluchtwegen durch Kennzeichnung jederzeit als solche erkannt werden. Ein Fluchtwegtürverschluss muss so gebaut sein, dass er die Türe in Fluchtrichtung mit einer einzigen Handbewegung innerhalb einer Sekunde freigibt. Die Türen dürfen sich im Normalbetrieb nicht so weit verformen (beispielsweise durch klimatischen Einwirkungen wie Wärme usw.), dass sie nicht mehr geöffnet werden können. Die Paniktüren müssen sich unter Vorlast von 1000 N öffnen lassen. Die bei uns üblichen Notausgangstüren entsprechen den Normen SN EN 179 (mechanisch) und prEN 13637 (elektrisch).

Durchgangsbreiten

Die nutzbare Breite von Türen in Fluchtwegen ist nach der möglichen Personenbelegung zu bemessen (siehe VKF-Brandschutzrichtlinie «Flucht- und Rettungswege»). Der Raum mit der grössten Personenbelegung bestimmt die erforderliche Breite. Die minimale nutzbare Breite beträgt 0,90 m. Je nach Personenbelegung wird die Breite auf ein Vielfaches von 0,60 m erweitert. Bei zweiflügeligen Türen, die sich nur in eine Richtung öffnen lassen, muss ein Flügel eine lichte Breite von mindestens 0,90 m aufweisen. Bei zweiflügeligen Türen muss der Standflügel nur dann Fluchtwegeigenschaften aufweisen, wenn der Gehflügel die geforderte nutzbare Breite nicht aufweist. Die lichte Durchgangshöhe bei horizontalen Fluchtwegen muss mindestens 2,10 m aufweisen. Nutzungsbezogen sind Abweichungen möglich, jedoch objektbezogen abzuklären.  

 

«Die minimale nutzbare Breite beträgt 0,90 m. Je nach Personenbelegung wird die Breite auf ein Vielfaches von 0,60 m erweitert.»  

 

Funktionen von mechanischen Panikschlössern

Das Panikschloss ist so konstruiert, dass es in Fluchtrichtung jederzeit ohne Hilfsmittel über die Betätigung des Drückers bzw. der Griff- und Druckstangen geöffnet werden kann. Dabei werden die Schlossfalle und der Schlossriegel zurückgezogen, auch wenn das Schloss mittels Schlüssel zuvor verriegelt wurde. Heute werden häufig selbstverriegelnde Panikschlösser (SVP) verwendet. Beim Schliessen der Türe wird der Schlossriegel durch eine spezielle Einrichtung im Schloss ausgestossen und die Türe ist wieder verriegelt. 

Teilpanik / Vollpanik

Bei zweiflügeligen Türen wird zwischen folgenden Versionen unterschieden:

Teilpanik
Paniköffnung nur über den Gehflügel. Der Standflügel bleibt geschlossen.

Vollpanik:
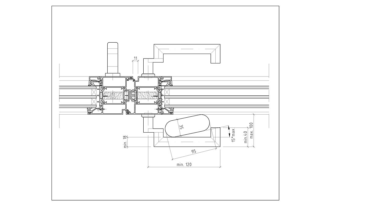
Die Paniköffnung ist über den Geh- und den Standflügel möglich. Dies erfordert zusätzlich eine Mitnehmerklappe. Die Falzdistanz im Stulpbereich zwischen Geh- und Standflügel wird zur Vermeidung von Zwängungen mittels Verwendung eines «Panikflügels» statt eines «Standardflügels» von 5 mm auf 11 mm erhöht (Wert kann je nach Profilsystemhersteller geringfügig abweichen).

Drücker
Bei der Auswahl des Drückers sollte darauf geachtet werden, dass die Gefahr des Hängenbleibens mit den Kleidern minimiert wird. Die SN EN 179 schreibt Drücker mit entsprechenden Minimal- und Maximalabmessungen vor (siehe Grafik). 

Die SN EN 179 schreibt Drücker mit entsprechenden Minimal- und Maximalabmessungen vor.
Die SN EN 179 schreibt Drücker mit entsprechenden Minimal- und Maximalabmessungen vor.

 

Merkblatt

Für ergänzende Informationen laden Sie das Merkblatt TK 004 «Türen in Fluchtwegen – mechanisch betätigte Fluchtwegtüren» auf www.metaltecsuisse.ch unter Technik / Merkblätter herunter.

 

Das Fachregelwerk Metallbauerhandwerk – Konstruktionstechnik enthält im Kap. 2.3.1 wichtige Informationen zum Thema «Metalltüren».