Juni 2021
Juni 2021
Abo

Die richtige Software für den richtigen Zweck

Planung 2D / 3D

Antlog AG    Der Planungsaufwand in einem Metallbaubetrieb ist gross und nimmt tendenziell nicht ab. Oft stellt sich die Frage, ob man mit der geeigneten Software noch Zeit sparen könnte. Eine Investition in eine spezialisierte Software ist vielfach recht hoch, insbesondere wenn man die Schulung der Mitarbeitenden mit einkalkuliert. www.mbpag.ch


Login

Danke für Ihr Interesse an unseren Inhalten. Abonnenten der Fachzeitschrift metall finden das Login für den Vollzugriff im Impressum der aktuellen Printausgabe. Das Passwort ändert monatlich.


Jetzt registrieren und lesen. Registrieren Sie sich um einzelne Artikel zu lesen und einfach per Kreditkarte zu bezahlen. (CHF 5,- pro Artikel)
Als registrierter Benutzer haben Sie jederzeit Zugriff auf Ihre gekauften Artikel.

Sollten Sie als interessierte Fachkraft im Metall-, Stahl- und Fassadenbau die Fachzeitschrift metall tatsächlich noch nicht abonniert haben, verlieren Sie keine Zeit und bestellen Sie Ihr persönliches Abonnement gleich hier.

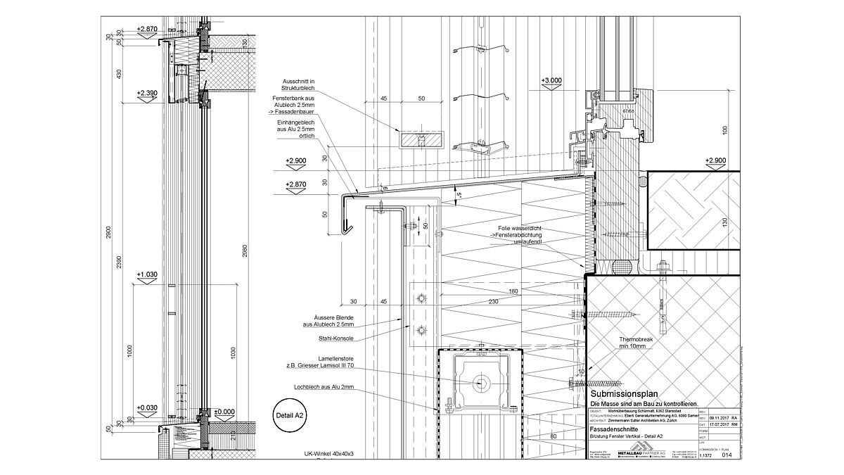
Klassische Fassadenkonstruktion 2D mit ANTLOG-MBA.
Klassische Fassadenkonstruktion 2D mit ANTLOG-MBA.

Planung 2D / 3D

Die richtige Software für den richtigen Zweck

Antlog AG    Der Planungsaufwand in einem Metallbaubetrieb ist gross und nimmt tendenziell nicht ab. Oft stellt sich die Frage, ob man mit der geeigneten Software noch Zeit sparen könnte. Eine Investition in eine spezialisierte Software ist vielfach recht hoch, insbesondere wenn man die Schulung der Mitarbeitenden mit einkalkuliert. www.mbpag.ch

3D-Konstruieren ist eher anspruchsvoller als das 2D. Insbesondere wenn man sich schon jahrelang an ein System gewöhnt hat, fällt die Umstellung nicht leicht. Es ist durchaus sinnvoll, dass sich in einem Unternehmen die Konstrukteure*innen auf ein System spezialisieren. Arbeitet ein Planer oder eine Planerin monatelang mit einem 2D-CAD und konstruiert ein- bis zweimal im Jahr etwas mit einem 3D-System, so ist er / sie vermutlich nicht so effizient wie Mitarbeitende, die das fast täglich machen. Auch ist es dann fraglich, ob sich die hohe Investition rechnet, wenn das System nicht ausgelastet ist.

Auf einfache Art zum 3D-Modell

Besonderes Augenmerk verdienen die 3D-Lösungen von Trepedia und Tenado. Diese Programme haben eine einfach zu bedienende Oberfläche und generieren ein 3D-Modell. Die Anwendung ist dann aber auf die vorgesehenen Bauteile beschränkt und Sonderlösungen lassen sich dann nur erschwert oder gar nicht umsetzen. Deshalb sind solche spezialisierte Anwendungen sinnvollerweise in Kombination mit einem 2D-CAD einzusetzen.
Bei 3D-Programmen gibt es grosse Leistungsunterschiede. Auch mit den meisten auf 2D spezialisierten CADs kann man gelegentlich mal eine 3D-Visualisierung erstellen (z.B. ANTLOG-ONE). Natürlich fehlen dann alle die zeitsparenden Funktionen wie Anschlüsse und Ableitungen und Konstruktionsänderungen dürften nur mühsam umzusetzen sein. Auch AutoCAD verfügt über umfangreiche 3D-Funktionen, die aber in der Metallbau-Praxis nicht genügend Automatismen bieten.

 

 

Stahlkonstruktion-Modell und Werkstattplanung mit HiCAD, Genehmigungspläne und Montagedetails mit ANTLOG-ONE.
Stahlkonstruktion-Modell und Werkstattplanung mit HiCAD, Genehmigungspläne und Montagedetails mit ANTLOG-ONE.

 

Multifunktionalität ermöglicht viel

Was ist, wenn der Kleinbetrieb jetzt nicht die grossen Investitionen für jeden Zweck tätigen kann? Deshalb sind viele Anwendungen multifunktionell, d.h. nebst dem Schnittzeichnen verfügen sie auch über Funktionen im Treppen-, Geländer- und Türbereich. Die Anwendungen z.B. von Antlog können sogar Türansichten erstellen und davon Schnitte und Stücklisten generieren, gehen dabei aber bei Weitem nicht so weit wie die dafür spezialisierten Programme. 

 

Treppenerfassung mit Geländer mit Trepedia.
Treppenerfassung mit Geländer mit Trepedia.

 

Fazit/Empfehlung

Eine spezialisierte Software lohnt sich, wenn der Konstrukteur/die Konstrukteurin diese regelmässig anwenden kann. Andernfalls ist eine einfache und vielseitige CAD-Lösung die bessere Wahl, auch wenn gelegentlich der Planungsaufwand etwas grösser ist. Objektbezogen sollte die Zusammenarbeit mit einem spezialisierten Planungsbüro in Erwägung gezogen werden. ■

 

Autor: Ralf Meyer, Inhaber und Geschäftsführer der Metallbau Partner AG und Antlog AG und seit über 30 Jahren 2D-und 3D-Anwender.